都市大キャンパスと多摩川の街
- 「2LDK+ガレージ」の3階メゾネット
- ハッチ開閉できる奥行7.0mガレージ
- 多摩川河川敷まで真っ直ぐ300m
| 賃料 | 270,000円 |
|---|---|
| 管理費等 | 共益費5,000円/月 |
| 礼金/敷金 | 礼金0ヶ月/敷金1ヶ月 |
| 所在地 |
東京都世田谷区玉堤1丁目
|
| 部屋 | 間取り(面積) | 賃料 |
|---|---|---|
| 1-1 | 2LDK+ガレージ(109.06㎡) | 入居中 |
| 1-2 | 2LDK+ガレージ(109.06㎡) | 270,000円 |
| 1-3 | 2LDK+ガレージ(109.06㎡) | 入居中 |
お申込み・内見のご依頼はお問い合わせフォームよりお願いいたします。希望日時や入居希望時期の項目をご入力いただけるとスムーズにご案内できます。
東京都世田谷区玉堤1丁目、約75,000㎡の広大な敷地を有する東京都市大学 世田谷キャンパスのほど近くに建つ「SHUKURA玉堤」。2棟構成のうち、西側の1号棟がガレージハウスとなります。
前面道路をまっすぐ進むと、約300mで多摩川の河川敷へ。眼下には豊かな緑が広がり、視線の先にはすっきりと抜けた青空、対岸には武蔵小杉のマンション群を望みます。日常のすぐそばに、気軽に気分を切り替えられる長閑な時間がある── それもこの場所ならではの価値ではないでしょうか。ペット相談可(小型犬または猫/別途条件あり)となっており、愛犬との散歩コースにもぴったりです。
鉄道駅は東急大井町線_尾山台駅まで徒歩17分、東急東横線_田園調布駅まで徒歩21分。いずれも日常使いにはやや距離がありますが、目黒通り(都道312号) 1.0km・環八通り 1.4km・第三京浜道路_玉川IC 2.0kmと主要道路へ出やすく、車移動が中心のライフスタイルにしっくりくる立地です。
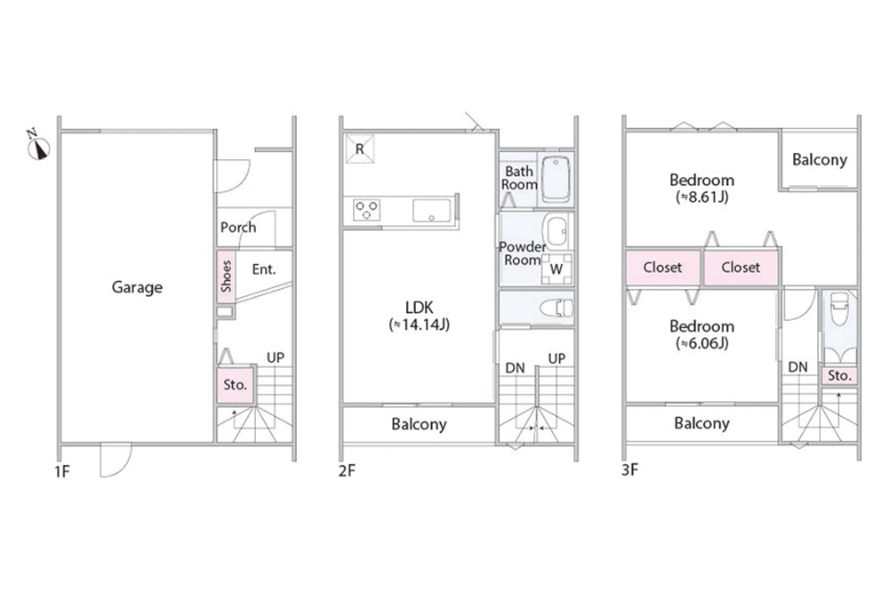
ガレージ寸法は横幅3.43m×奥行7.02m、シャッター開口は横幅2.43m×高さ2.10m。アース付き100V2口コンセント×2箇所を装備し、背面には建物裏手に出入りできる勝手口が備わります。奥行にゆとりがあるので、リアハッチを開いて荷物を積み下ろしたり、自転車やアウトドアギアを置いたりと実用的に使えます。
車路幅はシャッター前で5.15m、植栽部分でも4.15mを確保しています。前面道路の幅員は3.25m、電柱部分の有効幅は2.75mとタイトですが、一方通行となるため対向車の心配はありません。
シャッター脇の奥まったポーチを抜けると、ゆとりある玄関ホールへ。シューズボックスに加えて扉付き収納も備えており、アウターやレイングッズもすっきり収められます。
2Fは対面キッチンのLDK(14.14帖)と水回り、3Fは2つの洋室(8.61帖/6.06帖)。バルコニーはLDKと各洋室に計3箇所、トイレは2F/3Fにそれぞれ設けられています。



ガレージ




居室









アクセス&立地
鉄道駅は東急大井町線_尾山台駅まで徒歩17分、東急東横線_田園調布駅まで徒歩21分。
幹線道路は目黒通り(都道312号)まで1.0km、環八通りまで1.4km。高速道路は第三京浜道路_玉川ICまで2.0km、東名高速道路_東京IC/首都高3号渋谷線_用賀ICまで4.7kmです。
| 部屋 | 間取り(面積) | 賃料 |
|---|---|---|
| 1-1 | 2LDK+ガレージ(109.06㎡) | 入居中 |
| 1-2 | 2LDK+ガレージ(109.06㎡) | 270,000円 |
| 1-3 | 2LDK+ガレージ(109.06㎡) | 入居中 |
お申込み・内見のご依頼はお問い合わせフォームよりお願いいたします。希望日時や入居希望時期の項目をご入力いただけるとスムーズにご案内できます。
詳細情報
| 賃料 | 270,000円 |
|---|---|
| 管理費等 | 共益費5,000円/月 |
| 礼金/敷金 | 礼金0ヶ月/敷金1ヶ月 |
| 仲介手数料 | 賃料の1.1ヶ月(税込) |
| 保証会社 | 加入要(初回:総賃料の50%/年額:10,000円/収納代行手数料:月額100円) |
| 損保 | 加入要 28,000円/2年 |
| その他 | 更新料:新賃料の1ヶ月分 入居サポート:16,500円 鍵交換:38,500円〜 |
| 備考 | ペット飼育時:共益費+3,000円/月 |
| 所在地 | 東京都世田谷区玉堤1丁目 |
|---|---|
| 間取り | 2LDK+ガレージ |
| 専有面積 | 109.06㎡ |
| 構造 | 木造3階建 |
| 築年月 | 2025年3月(築1年) |
| 総戸数 | ガレージ付きは3戸 |
| 備考 | ペット相談可(小型犬または猫) 事務所利用不可/楽器不可 |
| 駐車台数 | 1台 |
|---|---|
| 車庫サイズ | 横幅3.43m×奥行7.02m |
| 開口 | 横幅2.43m×高さ2.10m |
| 天井高 | - |
| 設備 | 100Vコンセント |
| 車 | 目黒通り(都道312号) 1.0km/環八通り 1.4km 第三京浜道路_玉川IC 2.0km/東名高速道路_東京IC・首都高3号渋谷線_用賀IC 4.7km |
|---|---|
| 鉄道 | 東急大井町線_尾山台駅 徒歩17分 東急東横線_田園調布駅 徒歩21分 |
| バス | - |
| 物件名 | SHUKURA玉堤(世田谷区) |
|---|---|
| 物件コード | TR289 |
| 情報更新日 | 2026/04/15 |
| 更新予定日 | 2026/05/05 |
| 入居時期 | |
| 条件 | |
| 取引態様 | 媒介 |
| その他 |
| 部屋 | 間取り(面積) | 賃料 |
|---|---|---|
| 1-1 | 2LDK+ガレージ(109.06㎡) | 入居中 |
| 1-2 | 2LDK+ガレージ(109.06㎡) | 270,000円 |
| 1-3 | 2LDK+ガレージ(109.06㎡) | 入居中 |
お申込み・内見のご依頼はお問い合わせフォームよりお願いいたします。希望日時や入居希望時期の項目をご入力いただけるとスムーズにご案内できます。