公園の緑が借景の大空間吹抜け
- 居室直結、開口幅5.4mの2台ガレージ
- 敷地面積123.27㎡/建物面積191.03㎡
- 新井薬師駅 歩10分/中井駅 歩11分
| 価格 (税込) |
2億5,000万円 |
|---|---|
| 所在地 |
東京都新宿区中井2丁目
|
お申込み・内見のご依頼はお問い合わせフォームよりお願いいたします。希望日時や入居希望時期の項目をご入力いただけるとスムーズにご案内できます。
新宿区中井2丁目、栄通りと妙正寺川を挟んで中野区立上高田公園に隣接する、2015年5月築の中古ガレージハウス。2車線道路に面した敷地で、新青梅街道(800m)・山手通り(1.0km)・目白通り(1.3km)へ細い道を通らずアクセスできます。
鉄道は西武新宿線_新井薬師前駅 徒歩10分/都営大江戸線_中井駅 徒歩11分の2路線2駅を利用可能。車移動を軸にしながら、都心方面へは電車も使う。そんなハイブリッドスタイルに馴染む柔軟な移動環境が整っています。
妙正寺川沿いを歩けば、西落合公園・妙正寺川公園・哲学堂公園を経て、江古田公園へ。水辺と緑が連なる散歩道が身近にあり、都心近郊でありながら自然を感じられることも魅力です。
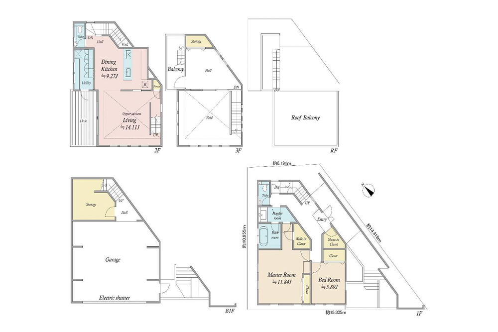
建物は地下1階/地上3階建の「2LDK+ガレージ(建物面積191.03㎡)」。傾斜地のためガレージは地下1階扱いですが、前面歩道と同じ高さに設けられています。
ガレージ寸法は横幅7.21m×奥行5.90m(横幅は袖壁部分で5.46m)、電動シャッターの開口は横幅5.46m×高さ1.80m。高さ方向がシビアなためSUVやミニバンは車種を選びますが、開口幅にゆとりがありSクラスや7シリーズなどのLセグメントも問題なく入庫できます。
設備は100V2口コンセント×3箇所と壁出し水栓。ガレージ後方にはストレージと居室へ繋がる階段があります。
歩道切り下げはやや勾配がキツいので、スーパーカー系はリフター装着車が望ましいでしょう。切り下げは幅が広く、斜めに進入するなど工夫の余地はありそうです。
部屋構成はLDK(計23.38帖)と2つの洋室(11.48帖/5.89帖)による2LDK。書斎やデッキ、WIC・SICを含む複数の収納を備えたゆとりある内容です。リビングは3方向の窓を有する伸びやかな吹抜け空間で、公園の緑を目前に望むことができます。
さらに階段を上ると、リビングを見下ろすホールへ。扉の外にはルーフバルコニーへ続く階段があり、西には上高田公園の緑、北には目白大学新宿キャンパスを望む爽やかな景色が広がります。




ガレージ











居室






















アクセス&立地
鉄道駅は西武新宿線_新井薬師前駅まで徒歩10分、都営大江戸線_中井駅まで徒歩11分。
幹線道路は新青梅街道(都道440号)まで800m、山手通りまで1.0km、目白通り(都道8号)まで1.3km。高速道路は首都高C2中央環状線_西池袋IC(内回り入口)まで2.7km/高松IC(外回り入口)まで3.7kmです。
お申込み・内見のご依頼はお問い合わせフォームよりお願いいたします。希望日時や入居希望時期の項目をご入力いただけるとスムーズにご案内できます。
詳細情報
| 価格 (税込) |
2億5,000万円 |
|---|---|
| 仲介手数料 | 売買価格の3.3%+66,000円(税込) |
| 所在地 | 東京都新宿区中井2丁目 |
| 間取り | 2LDK+ガレージ |
| 土地面積 | 123.27㎡ |
| 建物面積 | 191.03㎡ |
| 建ぺい率・容積率 | 60%・150% |
| 築年月 | 2015年5月(築11年) |
| 土地の権利形態 | 所有権 |
| 構造 | 木・鉄筋コンクリート造 地下1階/地上3階建 |
| 施工 | |
| 都市計画 | 市街化区域 |
| 用途地域 | 第一種中高層住居専用地域 |
| 備考 | 準防火地域・日影規制・高度地区:20m第2種 土砂災害警戒区域 一部土砂災害特別警戒区域 埋蔵文化財包蔵地内 落合遺跡 家具、家電付き |
| 駐車台数 | 並列2台 |
|---|---|
| 車庫サイズ | 横幅7.21m×奥行5.90m(横幅は袖壁部分で5.46m) |
| 開口 | 横幅5.46m×高さ1.80m |
| 天井高 | - |
| シャッター | 電動シャッター |
| 設備 | 100V/水栓 |
| 備考 |
| 車 | 新青梅街道(都道440号) 800m/山手通り 1.0km/目白通り(都道8号) 1.3km 首都高C2中央環状線_西池袋IC(内回り入口) 2.7km・高松IC(外回り入口) 3.7km |
|---|---|
| 鉄道 | 西武新宿線_新井薬師前駅 徒歩10分 都営大江戸線_中井駅 徒歩11分 |
| バス | - |
| 物件名 | 新宿区中井2丁目の中古ガレージハウス |
|---|---|
| 物件コード | TS34 |
| 情報更新日 | 2026/04/27 |
| 更新予定日 | 2026/05/12 |
| 入居時期 | |
| 条件 | |
| 取引態様 | 媒介 |
| その他 |
お申込み・内見のご依頼はお問い合わせフォームよりお願いいたします。希望日時や入居希望時期の項目をご入力いただけるとスムーズにご案内できます。