漆黒のコンテナでバイク趣味に没頭
- 開口3.4m、複数バイクを収容可
- 屋外駐車2台でトランポ常駐も
- 厚木IC 2.0km/新東名_厚木南IC 2.7km
| 賃料 | 148,500円 |
|---|---|
| 管理費等 | なし |
| 礼金/敷金 | 礼金1ヶ月/敷金1ヶ月 |
| 所在地 |
神奈川県厚木市岡田4丁目
|
| No | タイプ | 寸法 | 賃料 |
|---|---|---|---|
| A | 開口幅3.40m 奥行4.85m |
148,500円 | |
| B | 開口幅3.40m 奥行4.85m |
148,500円 | |
| C | 開口幅3.40m 奥行4.85m |
148,500円 |
お申込み・内見のご依頼はお問い合わせフォームよりお願いいたします。希望日時や入居希望時期の項目をご入力いただけるとスムーズにご案内できます。
重厚な存在感を放つ、ブラックを纏ったスクエアなコンテナ型ガレージ「AZTO厚木岡田4丁目」。東名_厚木IC(2.0km)・新東名_厚木南IC(2.7km)・小田原厚木道路_厚木西IC(2.9km)・圏央道_海老名IC(3.8km)の4路線4インターにほど近く、東西南北へ軽快にアクセスできる機動力ある立地です。関東有数のツーリングスポットとして知られる箱根や伊豆方面へもスムーズに向かえます。
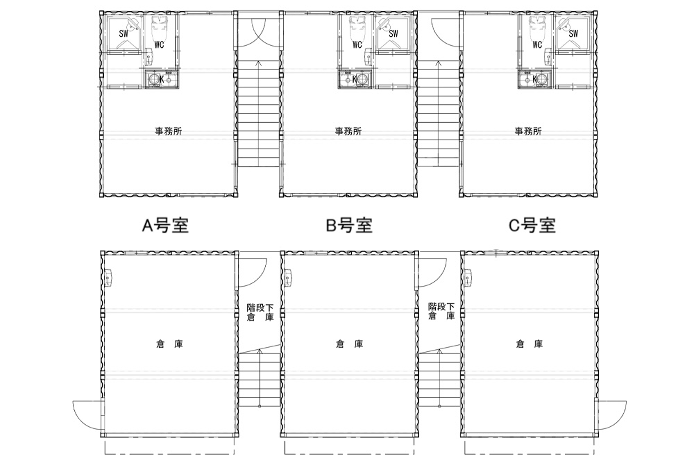
ガレージ内は、外観の印象とは打って変わって白を基調とした明るい空間。ビッグバイク3台をゆとりをもって収容できるサイズ感です。外階段で昇降する2階は事務所利用を想定したワンルームで、IH1口のミニキッチン・シャワールーム・トイレを備えます。
また、敷地内には各戸2台分の屋外駐車場を用意。自宅から車でガレージへ向かい、2Fでライディングウェアに着替えてツーリングへ出発する── そんな運用もイメージできます。駐車場にトランポを常駐させておけるため、サーキット走行の拠点としても便利です。富士スピードウェイまではちょうど50km、流れていれば1時間ほどの道のりです。



レフ効果で引き立つ愛機たち

横幅3.40m×奥行4.85mのガレージは、内部に柱の張り出しがほとんどない、鉄骨造ならではのスクエアで使いやすい形状。床はグレーの縞鋼板、天井と壁面はホワイトで統一され、ほどよいレフ板効果により、駐車したマシンを美しく引き立てます。
ビッグバイクを3台収めても、なおゆとりを感じられるサイズ感。YAMAHA_YZF-R3(全長2,090㎜×全幅735㎜)のようなミドルクラスであれば、5-6台は収まりそうです。複数台所有はもちろん、プラスアルファで趣味のアイテムを置いておきたい方にも好適でしょう。
電動シャッターの開口は横幅3.40m×高さ2.06m。ガレージ前の車路幅は3.50mで、複数台を入れ替える場面でも余裕をもって対応できます。奥行と車路幅の関係から、四輪車は入庫できる車種が限られますが、バイクの取り回しに不便はありません。
庫内には100V2口コンセント・手洗い水栓・換気窓&換気扇を装備、屋外には洗車で重宝する散水栓があります。なお、A/B号室は、階段下の物置スペースも利用できます。























ツーリングが快適になる充実設備

ガレージ横の階段を上ってアクセスする居室は、事務所利用を想定したワンルーム。白を基調とした室内には、南北2方向に設けられた窓から自然光が差し込みます。
IH1口コンロのミニキッチン・シャワールーム・トイレを備えているので、ツーリング後にシャワーでリフレッシュしたり、コーヒーを淹れてツーリングプランを練ったりと、快適な時間を過ごせます。時には仲間を招いて、旅の思い出やバイク談義に花を咲かせるのも良いでしょう。オートバイ趣味を充実させる、自分だけの拠点として使いたくなる空間です。




アクセス&立地
鉄道駅は小田急小田原線_本厚木駅まで徒歩20分。
幹線道路は八王子街道(県道601号)まで250m、国道129 号まで1.2km、国道246号まで2.0km。東名高速道路_厚木ICまで2.0km、新東名高速道路_厚木南ICまで2.7km、小田原厚木道路_厚木西ICまで2.9km、圏央道_海老名ICまで3.8kmです。
| No | タイプ | 寸法 | 賃料 |
|---|---|---|---|
| A | 開口幅3.40m 奥行4.85m |
148,500円 | |
| B | 開口幅3.40m 奥行4.85m |
148,500円 | |
| C | 開口幅3.40m 奥行4.85m |
148,500円 |
お申込み・内見のご依頼はお問い合わせフォームよりお願いいたします。希望日時や入居希望時期の項目をご入力いただけるとスムーズにご案内できます。
詳細情報
| 賃料 | 148,500円 |
|---|---|
| 管理費等 | なし |
| 礼金/敷金 | 礼金1ヶ月/敷金1ヶ月 |
| 仲介手数料 | 賃料の1.1ヶ月(税込) |
| 保証会社 | 加入要(初回:総賃料の80%〜/年額:10%) |
| 損保 | 加入要 10,910円〜/年 |
| その他 | 更新料:新賃料の1ヶ月分 |
| 備考 | 解約予告:3ヶ月前 |
| 所在地 | 神奈川県厚木市岡田4丁目 |
|---|---|
| 総庫数 | 3庫 |
| 備考 | 事業利用相談可 築年月:2026年2月 |
| 駐車台数 | バイク3台以上または小型車 |
|---|---|
| 車庫サイズ | 横幅3.40m×奥行4.85m |
| 開口 | 横幅3.40m×高さ2.06m |
| 天井高 | - |
| 設備 | 100V/水栓/屋外散水栓/屋外駐車スペース2台 |
| 車 | 八王子街道(県道601号) 250m/国道129 号 1.2km/国道246号 2.0km 東名高速道路_厚木IC 2.0km/新東名高速道路_厚木南IC 2.7km/小田原厚木道路_厚木西IC 2.9km/圏央道_海老名IC 3.8km |
|---|---|
| 鉄道 | 小田急小田原線_本厚木駅 徒歩20分 |
| バス | - |
| 物件名 | AZTO厚木岡田4丁目 |
|---|---|
| 物件コード | KR196G |
| 情報更新日 | 2026/04/20 |
| 更新予定日 | 2026/05/04 |
| 入居時期 | |
| 条件 | |
| 取引態様 | 媒介 |
| その他 |
| No | タイプ | 寸法 | 賃料 |
|---|---|---|---|
| A | 開口幅3.40m 奥行4.85m |
148,500円 | |
| B | 開口幅3.40m 奥行4.85m |
148,500円 | |
| C | 開口幅3.40m 奥行4.85m |
148,500円 |
お申込み・内見のご依頼はお問い合わせフォームよりお願いいたします。希望日時や入居希望時期の項目をご入力いただけるとスムーズにご案内できます。