屋上へ続く階段と吹抜け天井
- 屋上付き3LDK+ガレージ(85.68㎡)
- 奥行5.6mガレージ+屋外駐車スペース
- 船橋日大前駅 歩12分/北習志野駅 歩14分
| 賃料 | - |
|---|---|
| 管理費等 | - |
| 礼金/敷金 | - |
| 所在地 |
千葉県船橋市習志野台7丁目
|
| 部屋 | 間取り(面積) | 賃料 |
|---|---|---|
| 101号室 | 3LDK+ガレージ(85.68㎡) | 入居中 |
| 102号室 | 3LDK+ガレージ(85.68㎡) | 入居中 |
| 103号室 | 3LDK+ガレージ(85.68㎡) | 入居中 |
周辺の募集中物件入居申込受付中
お申込み・内見のご依頼はお問い合わせフォームよりお願いいたします。希望日時や入居希望時期の項目をご入力いただけるとスムーズにご案内できます。
東葉高速鉄道_船橋日大前駅 徒歩12分/京成松戸線_北習志野駅 徒歩14分の2駅を利用できる賃貸ガレージハウス「Trust House(トラストハウス)」。細い道を通らずにアプローチできる環境でありながら、袋小路の一角でほとんど車通りがない穏やかな立地です。
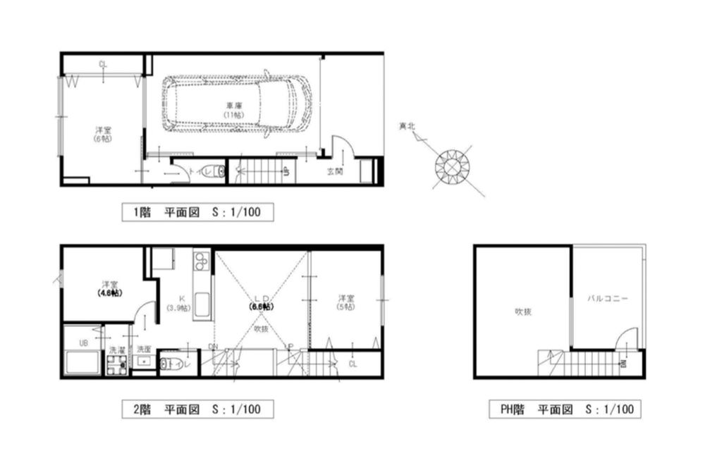
間取りはカウンターキッチンや大きなクローゼットを備えた「3LDK+ガレージ(専有面積85.68㎡)」でファミリー入居にも対応。大きな窓越しに愛車を眺める洋室や階段で昇降するルーフバルコニーなど、日常にちょっとしたスパイスを添える遊び心も盛り込まれています。
シャッター前の空地は屋外駐車スペースとして利用でき、ガレージと合わせて2台駐車可。ガレージに趣味のスポーツカー、屋外にはSUVやミニバンという組み合わせがしっくりきますね。屋外には洗車に重宝する立水栓と2段式の専用宅配ボックスが用意されています。




愛車を眺める“離れ”のような部屋

ガレージ寸法は横幅3.15m/奥行5.45〜5.60m、電動式のシャッター開口は横幅2.85m×高さ2.20m。前後20cmずつ余裕を持ったとして、全長5,000㎜程度の車種を無理なく格納できます。
庫内にはEV充電用200V電源×1箇所・アース付き100V2口コンセント×1箇所、屋外にはホース用の蛇口を備えた立水栓を装備。屋外駐車スペースは横幅3.30m×奥行5.20mで3ナンバーも駐車できます。
2Fから1F洋室へは一度玄関で靴に履き替え、ガレージを経由して行き来する動線となります。1Fにもトイレがあるので仕事や趣味に集中できますし、家の中でありながら“離れ”のような程良い距離感を保つことができます。

















プライベートな屋上空間

2FはLDK(計10.5帖)+洋室(5帖)+洋室(4.6帖)で、LDKと洋室(5帖)は引戸を解放して一つの空間として使うこともできます。
また、階段で昇降できるルーフバルコニーは壁が高く隣室から見えないプライベートなつくりになっています。














アクセス&立地
鉄道駅は東葉高速鉄道_船橋日大前駅まで徒歩12分、京成松戸線_北習志野駅まで徒歩14分。
幹線道路は成田街道(国道296号)まで1.4km、国道16号まで6.4km。高速道路は京葉道路_武石ICまで7.9km/花輪ICまで8.0kmです。
| 部屋 | 間取り(面積) | 賃料 |
|---|---|---|
| 101号室 | 3LDK+ガレージ(85.68㎡) | 入居中 |
| 102号室 | 3LDK+ガレージ(85.68㎡) | 入居中 |
| 103号室 | 3LDK+ガレージ(85.68㎡) | 入居中 |
周辺の募集中物件入居申込受付中
お申込み・内見のご依頼はお問い合わせフォームよりお願いいたします。希望日時や入居希望時期の項目をご入力いただけるとスムーズにご案内できます。
詳細情報
| 所在地 | 千葉県船橋市習志野台7丁目 |
|---|---|
| 間取り | 3LDK+ガレージ |
| 専有面積 | 85.68㎡ |
| 構造 | 木造2階建て |
| 築年月 | 2025年11月(築1年未満) |
| 総戸数 | 3戸 |
| 備考 |
| 駐車台数 | 1台 |
|---|---|
| 車庫サイズ | 横幅3.15m/奥行5.45〜5.60m |
| 開口 | 横幅2.85m×高さ2.20m |
| 天井高 | - |
| 設備 | EV用200V/100Vコンセント/屋外立水栓/屋外駐車スペース |
| 車 | 成田街道(国道296号) 1.4km/国道16号 6.4km 京葉道路_武石IC 7.9km・花輪IC 8.0km |
|---|---|
| 鉄道 | 東葉高速鉄道_船橋日大前駅 徒歩12分 京成松戸線_北習志野駅 徒歩14分 |
| バス | - |
| 物件名 | Trust House(船橋市) |
|---|---|
| 物件コード | CR173 |
| 情報更新日 | 2025/12/05 |
| 更新予定日 | 2026/03/30 |
| 入居時期 | - |
| 条件 | |
| 取引態様 | 媒介 |
| その他 |
| 部屋 | 間取り(面積) | 賃料 |
|---|---|---|
| 101号室 | 3LDK+ガレージ(85.68㎡) | 入居中 |
| 102号室 | 3LDK+ガレージ(85.68㎡) | 入居中 |
| 103号室 | 3LDK+ガレージ(85.68㎡) | 入居中 |
お申込み・内見のご依頼はお問い合わせフォームよりお願いいたします。希望日時や入居希望時期の項目をご入力いただけるとスムーズにご案内できます。