5戸のみで構成される高級物件
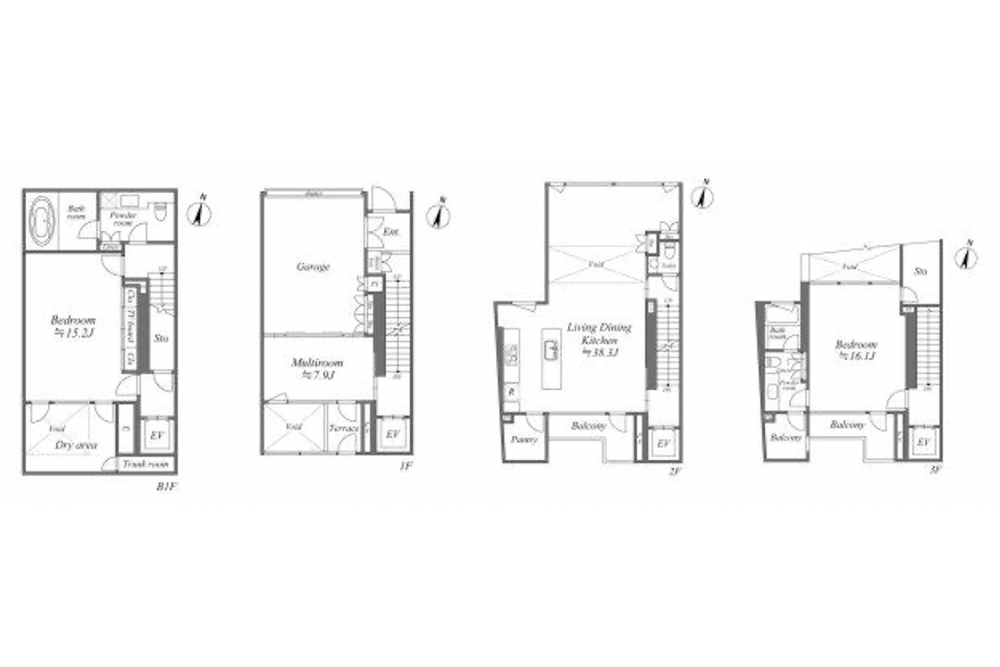
- 各戸4階分(地上3階/地下1階)を専有
- ガレージ寸法は横幅4.05m×奥行5.55m
- 東横線_都立大学駅 徒歩17分
| 賃料 | 890,000円 |
|---|---|
| 管理費等 | なし |
| 礼金/敷金 | 礼金1ヶ月/敷金2ヶ月 |
| 所在地 |
東京都目黒区八雲3丁目
|
| 部屋 | 間取り(面積) | 賃料 |
|---|---|---|
| 101号室 | 3LDK+ガレージ(247.00㎡) | 890,000円 |
| 102号室 | - | 入居中 |
| 103号室 | - | 入居中 |
| 104号室 | 3LDK+ガレージ(232.26㎡) | 入居中 |
| 105号室 | - | 入居中 |
お申込み・内見のご依頼はお問い合わせフォームよりお願いいたします。希望日時や入居希望時期の項目をご入力いただけるとスムーズにご案内できます。
※当ページでは104号室の写真・寸法を用いて紹介しております。
東京都目黒区八雲に立地する高級賃貸ガレージハウス「八雲ハウス」。
RC造低層マンションで総戸数はたった5戸、各戸にガレージを備え地下1F+地上3階の4フロアを専有する高級賃貸マンションです。八雲ハウスは高級物件が犇めく目黒区界隈でも「芸能人が住んでいる!?」と噂される有名な存在で、立地・建物・専有面積のどれを取っても妥協のない物件と言えます。
また、八雲ハウスはペット飼育可物件(小型犬)。北側400mには都立駒沢オリンピック公園があるので、愛犬とのお散歩を楽しむにはうってつけな立地なのです。閑静な住宅街でありながら、東急東横線_都立大学駅まで徒歩17分、環七通りまで1.1km/国道246号まで1.6kmと利便性も悪くないバランスの良さもポイントです。






ドイツ製高速シャッターを装備したガレージ

ガレージには原子力施設や消防車でも採用されるドイツBUTZBACH社製の高速スタッキングドアが採用され、開閉のストレスは皆無。各戸ガレージは電動ゲート潜った敷地内にあるため、シャッターと併せて2重のセキュリティとなります。ガレージ寸法は横幅4.05m×奥行5.55m、シャッター開口は横幅3.65m×高さ1.98mを確保。敷地内空地もゆとりあるため、入出庫もスムーズです。
写真のJEEP_ラングラー(全長4,870㎜×全幅1,895㎜×全高1,845㎜)はもちろん、Sクラスロング(W223 全長5,255㎜×全幅1,900㎜×全高1,495㎜)、BMW_X7(全長5,165㎜×全幅2,000㎜×全高1,835㎜)、ベントレー_ベンテイガ(全長5,150㎜×全幅1,995㎜×全高1,755㎜)などの大型車やフェラーリやランボルギーニなど低車高車種も問題ありません。
ただし、シャッター開口高が1.98mなのでGクラス(全高1,975㎜)はかなりシビアな判断が必要になります。公称値では5㎜の余裕がありますが、タイヤの選択や空気圧、個体差などの誤差を考えれば避けたいところです。















専有面積232.26㎡の4層メゾネット

居室は地下1F〜地上3階の4層メゾネット構造となり、各フロアはホームエレベーターで行き来できます。
アイランドキッチンを備えた28.3帖のLDKや15.2帖の地下室など“贅を尽くした”という表現がぴったりな豪華仕様。タワマンや豪邸などハイエンドな物件に住まれていた方にも満足いただける内容ではないでしょうか。









アクセス&立地
鉄道最寄駅は東急東横線_都立大学駅で徒歩17分。
幹線道路は環七通りまで1.1km、国道246号まで1.6km、環八通りまで2.5km。高速道路は第三京浜道路_玉川ICまで3.4km、首都高3号渋谷線_三軒茶屋ICまで3.5km、東名高速道路_東京ICまで4.7kmです。
| 部屋 | 間取り(面積) | 賃料 |
|---|---|---|
| 101号室 | 3LDK+ガレージ(247.00㎡) | 890,000円 |
| 102号室 | - | 入居中 |
| 103号室 | - | 入居中 |
| 104号室 | 3LDK+ガレージ(232.26㎡) | 入居中 |
| 105号室 | - | 入居中 |
お申込み・内見のご依頼はお問い合わせフォームよりお願いいたします。希望日時や入居希望時期の項目をご入力いただけるとスムーズにご案内できます。
詳細情報
| 賃料 | 890,000円 |
|---|---|
| 管理費等 | なし |
| 礼金/敷金 | 礼金1ヶ月/敷金2ヶ月 |
| 仲介手数料 | 賃料の1.1ヶ月(税込) |
| 保証会社 | 加入要(初回:総賃料の50%/年額:10,000円) |
| 損保 | 加入要 29,700円/2年 |
| その他 | 更新料:新賃料1ヶ月分 室内清掃費用:407,550円 |
| 備考 | ペット飼育時:敷金2ヶ月積み増し(退去時2ヶ月償却) |
| 所在地 | 東京都目黒区八雲3丁目 |
|---|---|
| 間取り | 104号室:3LDK+ガレージ |
| 専有面積 | 101号室:247.00㎡ 104号室:232.26㎡ |
| 構造 | RC造地上3階/地下1階建て |
| 築年月 | 2008年2月(築17年) |
| 総戸数 | 5戸 |
| 備考 | ペット相談可(小型犬・猫 上限2匹) 事務所利用不可・登記不可 |
| 駐車台数 | 1台 |
|---|---|
| 車庫サイズ | 横幅4.05m×奥行5.55m |
| 開口 | 横幅3.65m×高さ1.98m |
| 天井高 | - |
| 設備 | ガレージ内100Vコンセント×2箇所/高速電動シャッター/敷地入口電動ゲート |
| 車 | 環七通り 1.1km/国道246号 1.6km/環八通り 2.5km 第三京浜道路_玉川IC 3.4km/首都高3号渋谷線_三軒茶屋IC 3.5km/東名高速道路_東京IC 4.7km |
|---|---|
| 鉄道 | 東急東横線_都立大学駅 徒歩17分 |
| バス |
| 物件名 | 八雲ハウス(目黒区) |
|---|---|
| 物件コード | TR50 |
| 情報更新日 | 2025/11/13 |
| 更新予定日 | 2026/01/24 |
| 入居時期 | |
| 条件 | |
| 取引態様 | 媒介 |
| その他 |
| 部屋 | 間取り(面積) | 賃料 |
|---|---|---|
| 101号室 | 3LDK+ガレージ(247.00㎡) | 890,000円 |
| 102号室 | - | 入居中 |
| 103号室 | - | 入居中 |
| 104号室 | 3LDK+ガレージ(232.26㎡) | 入居中 |
| 105号室 | - | 入居中 |
お申込み・内見のご依頼はお問い合わせフォームよりお願いいたします。希望日時や入居希望時期の項目をご入力いただけるとスムーズにご案内できます。