表参道を庭に愛車と住まう
- 専有面積133.33㎡の3階メゾネット
- 都心を見渡すルーフテラス
- 表参道駅 徒歩7分/外苑前駅 徒歩8分
| 賃料 | 1,100,000円 |
|---|---|
| 管理費等 | なし |
| 礼金/敷金 | 礼金0ヶ月/敷金2ヶ月 |
| 所在地 |
東京都渋谷区神宮前3丁目
|
| 部屋 | 間取り(面積) | 賃料 |
|---|---|---|
| N | 1LDK+ガレージ(133.64㎡) | 1,100,000円 |
お申込み・内見のご依頼はお問い合わせフォームよりお願いいたします。希望日時や入居希望時期の項目をご入力いただけるとスムーズにご案内できます。
東京メトロ千代田線・半蔵門線_表参道駅 徒歩7分/銀座線_外苑前駅 徒歩8分に建つ「ゼプト神宮前」。2戸のみで構成されるRC造3階建てでN-sideはガレージを備えたメゾネットプランとなります。
外苑西通りからまい泉通りへ、さらに角を曲がり住宅地に入った立地で、表参道通りや外苑銀杏並木を徒歩圏としながらも喧騒を感じさせない穏やかな住環境です。
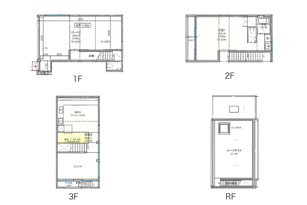
間取りは「1LDK+ガレージ(専有面積133.33㎡)」。
1Fは車に加えてオートバイ2-3台を格納できるゆとりあるガレージ、2Fは洋室と水回り、3Fは高天井と大開口窓が開放的なLDK。さらに屋外階段で昇降する屋上テラスが用意されていて、園芸やBBQを楽しむことができます。
景色は360°抜けていて渋谷駅周辺や新宿副都心のビル群を望むことも。何するでなくともフラっと出て大きな空を見渡せば仕事や家事の息抜きになること間違いなしですね。
ガレージは前方が広がった形状で横幅3.42〜4.73m/奥行8.95m、電動オーバースライダーを装備した開口部は横幅4.46m×高さ2.20m。十分なゆとりがあるのでクーペやカブリオレの乗り降りやリアハッチ開閉もストレスはありません。
庫内にはEV充電用200V電源×1箇所・100V2口コンセント×4箇所・200V仕様のエアコンを装備し、階段下は扉付きの収納に。屋外には洗車に便利な散水栓を備えます。
前面道路幅員は4.00mですが、シャッター前に1.75mの空地があり開口幅も広いので入出庫のストレスはありません。
ただし、物件の先は車両通行ができない細い通路となっているため、車種によっては手前の角から後進でアプローチする必要があります。また、まい泉通りからの道もタイトな箇所があるため、大型車は慣れが必要かもしれません。
アプローチ面を差し引いても、この特別なロケーションとRC造ならではの大空間を合わせ持った存在は類稀。神宮の地でワンランク上の東京カーライフを満喫してみてはいかがでしょうか。




ガレージ
























居室















アクセス&立地
鉄道駅は東京メトロ千代田線・半蔵門線_表参道駅まで徒歩7分、東京メトロ_銀座線_外苑前駅まで徒歩8分。
幹線道路は外苑西通り(都道418号)まで300m、明治通り(都道305号)まで800m、青山通り(国道246号)まで500m。高速道路は首都高4号新宿線_外苑ICまで1.7km、3号渋谷線_高樹町IC(上り入口)まで2.1km/渋谷IC(下り入口)まで2.7kmです。
| 部屋 | 間取り(面積) | 賃料 |
|---|---|---|
| N | 1LDK+ガレージ(133.64㎡) | 1,100,000円 |
お申込み・内見のご依頼はお問い合わせフォームよりお願いいたします。希望日時や入居希望時期の項目をご入力いただけるとスムーズにご案内できます。
詳細情報
| 賃料 | 1,100,000円 |
|---|---|
| 管理費等 | なし |
| 礼金/敷金 | 礼金0ヶ月/敷金2ヶ月 |
| 仲介手数料 | 賃料の1.1ヶ月(税込) |
| 保証会社 | 加入要 |
| 損保 | 加入要 |
| その他 | 更新料:なし |
| 備考 | 入居期間に応じて敷金の償却あり(5年以上の入居で全額免除) |
| 所在地 | 東京都渋谷区神宮前3丁目 |
|---|---|
| 間取り | 1LDK+ガレージ |
| 専有面積 | 133.64㎡ |
| 構造 | RC造3階建て |
| 築年月 | 2025年11月(築1年未満) |
| 総戸数 | 2戸(ガレージ付きは1戸のみ) |
| 備考 | ガレージ部分は店舗利用相談可 |
| 駐車台数 | 1台 |
|---|---|
| 車庫サイズ | 横幅3.42〜4.73m/奥行8.95m |
| 開口 | 横幅4.46m×高さ2.20m |
| 天井高 | - |
| 設備 | EV充電用200V電源/100Vコンセント/エアコン/散水栓 |
| 車 | 外苑西通り(都道418号) 300m/明治通り(都道305号) 800m/青山通り(国道246号) 500m 首都高4号新宿線_外苑IC 1.7km/3号渋谷線_高樹町IC(上り入口) 2.1km・渋谷IC(下り入口) 2.7km |
|---|---|
| 鉄道 | 東京メトロ千代田線・半蔵門線_表参道駅 徒歩7分 東京メトロ_銀座線_外苑前駅 徒歩8分 |
| バス | - |
| 物件名 | ゼプト神宮前(渋谷区) |
|---|---|
| 物件コード | TR267 |
| 情報更新日 | 2025/12/09 |
| 更新予定日 | 2025/12/23 |
| 入居時期 | |
| 条件 | |
| 取引態様 | 媒介 |
| その他 |
| 部屋 | 間取り(面積) | 賃料 |
|---|---|---|
| N | 1LDK+ガレージ(133.64㎡) | 1,100,000円 |
お申込み・内見のご依頼はお問い合わせフォームよりお願いいたします。希望日時や入居希望時期の項目をご入力いただけるとスムーズにご案内できます。