整った街並みと電動ゲート
- 広場を囲む3棟のガレージハウス
- 59.20㎡/75.35㎡の2タイプ
- JR武蔵野線_越谷レイクタウン駅 歩9分
| 賃料 | 98,000円〜135,000円 |
|---|---|
| 管理費等 | 5,000円/月 |
| 礼金/敷金 | 礼金1ヶ月/敷金2ヶ月 |
| 所在地 |
埼玉県越谷市レイクタウン6丁目
|
| 部屋 | 間取り(面積) | 賃料 |
|---|---|---|
| A-1 | 1DK+ガレージ(75.35㎡) | 入居中 |
| A-2 | 1DK+ガレージ(75.35㎡) | 135,000円 |
| A-3 | 1DK+ガレージ(75.35㎡) | 入居中 |
| B-1 | 1DK+ガレージ(75.35㎡) | 入居中 |
| B-2 | 1K+ガレージ(59.20㎡) | 入居中 |
| C-1 | 1K+ガレージ(59.20㎡) | 98,000円 |
| C-2 | 1K+ガレージ(59.20㎡) | 入居中 |
| C-3 | 1K+ガレージ(59.20㎡) | 入居中 |
お申込み・内見のご依頼はお問い合わせフォームよりお願いいたします。希望日時や入居希望時期の項目をご入力いただけるとスムーズにご案内できます。
JR武蔵野線_越谷レイクタウン駅南口から徒歩9分、綺麗に区画整理された住宅街に建つ3棟8戸構成のガレージハウス「Grace」。周辺は第一種低層住居専用地域に指定されていて、高い建物や工業施設が無い閑静な環境です。
一方、駅北側には総商業面積約19万㎡以上、店舗数約700を誇る日本最大級のショッピングモール「イオンレイクタウン」が広がっていてお買い物環境も文句無し。駅徒歩圏な点も含めて、住環境と利便性をバランス良く両立した立地と言えます。
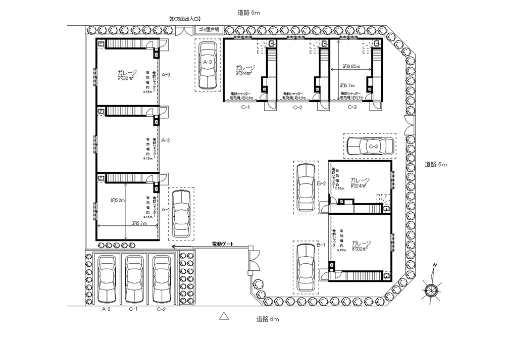
敷地は3辺を道路に面した角地で、3棟の建物が広場を囲むように配置されています。車両は幅員8.0mの南側道路からアプローチする動線で、入口には電動ゲートを完備。敷地をぐるりと囲んだフェンスも相まり、外界と仕切られたプライベートな雰囲気となっています。
間取りは2タイプで、A棟及びB-1は横幅5.28mのワイドガレージを備えた「1DK+ガレージ(75.35㎡)」、B-2及びC棟は一人暮らしやセカンドハウスにぴったりな「1K+ガレージ(59.20㎡)」。また、全戸に1台分の屋外駐車スペースが付帯します。





1DK+ガレージ(75.35㎡)
A-1/A-2/A-3/B-1の4戸は「1DK+ガレージ(75.35㎡)」。
ガレージ寸法は横幅5.28m×奥行5.63m、シャッター開口は横幅4.12m×高さ2.35m。「3ナンバー+小型車」「車+オートバイ2-3台」のような組み合わせで複数マシンを格納できるサイズ感です。
庫内にはEV充電用200V電源×1箇所・100V2口コンセント×3箇所・TVアンテナ・お湯も出る流し台、玄関前には洗車に便利な屋外散水栓を備えます。
2Fは壁付けキッチンのDK(8.25帖)と引戸で仕切った洋室(6.0帖)。洋室には大小2つの収納を用意、水回りはトイレが独立したレイアウトで二人暮らしにも対応できます。
ガレージ





















居室








1K+ガレージ(59.20㎡)
B-2/C-1/C-2/C-3の4戸は「1K+ガレージ(59.20㎡)」。
ガレージ寸法は横幅約3.8m×奥行約5.6m、シャッター開口は横幅2.90m×高さ2.35m。開口幅に余裕があるのでワイドボディなスポーツカーや大型SUVも無理なく入庫できます。また、1台分の屋外駐車スペースが付帯するので、足車との2台体制にも対応できます。
2Fは洋室(7.87帖)とキッチン(2.1帖)。単身向けですが、ウォークインタイプの収納を備え、独立トイレとするなど暮らしやすい間取りとなっています。



アクセス&立地
鉄道駅はJR武蔵野線_越谷レイクタウン駅まで徒歩9分。
幹線道路は東埼玉道路(国道4号)まで400m、草加バイパス(国道4号)まで4.7km。高速道路は常磐自動車道/首都高6号三郷線_三郷ICまで5.7km、外環自動車道_草加IC(内回り入口)まで6.2kmです。
| 部屋 | 間取り(面積) | 賃料 |
|---|---|---|
| A-1 | 1DK+ガレージ(75.35㎡) | 入居中 |
| A-2 | 1DK+ガレージ(75.35㎡) | 135,000円 |
| A-3 | 1DK+ガレージ(75.35㎡) | 入居中 |
| B-1 | 1DK+ガレージ(75.35㎡) | 入居中 |
| B-2 | 1K+ガレージ(59.20㎡) | 入居中 |
| C-1 | 1K+ガレージ(59.20㎡) | 98,000円 |
| C-2 | 1K+ガレージ(59.20㎡) | 入居中 |
| C-3 | 1K+ガレージ(59.20㎡) | 入居中 |
お申込み・内見のご依頼はお問い合わせフォームよりお願いいたします。希望日時や入居希望時期の項目をご入力いただけるとスムーズにご案内できます。
詳細情報
| 賃料 | 98,000円〜135,000円 |
|---|---|
| 管理費等 | 5,000円/月 |
| 礼金/敷金 | 礼金1ヶ月/敷金2ヶ月 |
| 仲介手数料 | 賃料の1.1ヶ月(税込) |
| 保証会社 | 加入要(初回:総賃料の40%〜) |
| 損保 | 加入要 16,000円〜20,000円/2年 |
| その他 | |
| 備考 | SOHO利用時:保証金3ヶ月/償却無 |
| 所在地 | 埼玉県越谷市レイクタウン6丁目 |
|---|---|
| 間取り | A棟/B-1:1DK+ガレージ B-2/C棟:1K+ガレージ |
| 専有面積 | A棟/B-1:75.35㎡ B-2/C棟:59.20㎡ |
| 構造 | 木造2階建て |
| 築年月 | 2017年3月(築8年) |
| 総戸数 | 8戸 |
| 備考 | SOHO利用相談可 |
| 駐車台数 | A棟/B-1:車種により2台 B-2/C棟:1台 |
|---|---|
| 車庫サイズ | A棟/B-1:横幅5.28m×奥行5.63m B-2/C棟:横幅約3.8m×奥行約5.6m |
| 開口 | A棟/B-1:横幅4.12m×高さ2.35m B-2/C棟:横幅2.90m×高さ2.35m |
| 天井高 | - |
| 設備 | EV充電用200V電源/100Vコンセント/TVアンテナ/流し台/屋外駐車スペース |
| 車 | 東埼玉道路(国道4号) 400m/草加バイパス(国道4号) 4.7km 常磐自動車道・首都高6号三郷線_三郷IC 5.7km/外環自動車道_草加IC(内回り入口) 6.2km |
|---|---|
| 鉄道 | JR武蔵野線_越谷レイクタウン駅 徒歩9分 |
| バス | - |
| 物件名 | Grace(越谷市) |
|---|---|
| 物件コード | SR157 |
| 情報更新日 | 2026/01/20 |
| 更新予定日 | 2026/02/04 |
| 入居時期 | A-2:即時 C-1:2026/2下旬 |
| 条件 | |
| 取引態様 | 媒介 |
| その他 |
| 部屋 | 間取り(面積) | 賃料 |
|---|---|---|
| A-1 | 1DK+ガレージ(75.35㎡) | 入居中 |
| A-2 | 1DK+ガレージ(75.35㎡) | 135,000円 |
| A-3 | 1DK+ガレージ(75.35㎡) | 入居中 |
| B-1 | 1DK+ガレージ(75.35㎡) | 入居中 |
| B-2 | 1K+ガレージ(59.20㎡) | 入居中 |
| C-1 | 1K+ガレージ(59.20㎡) | 98,000円 |
| C-2 | 1K+ガレージ(59.20㎡) | 入居中 |
| C-3 | 1K+ガレージ(59.20㎡) | 入居中 |
お申込み・内見のご依頼はお問い合わせフォームよりお願いいたします。希望日時や入居希望時期の項目をご入力いただけるとスムーズにご案内できます。