店舗が集まった町の中心地
- 車+バイクにも対応する奥行6.6m
- スーパーやコンビニが並ぶ県道沿い
- 東名高速道路_大井松田IC 3.9km

















賃料 | 102,000円 |
---|---|
管理費等 | 共益費3,000円/月 |
礼金/敷金 | 礼金1ヶ月/敷金2ヶ月 |
所在地 |
神奈川県足柄上郡開成町延沢
|
部屋 | 間取り(面積) | 賃料 |
---|---|---|
A号室 | 1LDK+ガレージ(67.44㎡) | 102,000円 |
B号室 | 1K+ガレージ(67.44㎡) | 入居中 |
C号室 | 1LDK+ガレージ(67.44㎡) | 入居中 |
お申込み・内見のご依頼はお問い合わせフォームよりお願いいたします。希望日時や入居希望時期の項目をご入力いただけるとスムーズにご案内できます。
※当ページではA号室の写真・寸法を用いて紹介しております。
F1グランプリも開催される名門サーキット スパ・フランコルシャン(ベルギー)の高速複合コーナーに由来する「Raidillon Eau Rouge(ラディオンオールージュ)」。東名高速道路_大井松田ICから3.9km、怒田開成小田原線(県道720号)沿いに立地する3戸タイプの賃貸ガレージハウスです。
開成町役場に程近い町の中心エリアで、県道ロードサイドにはスーパー・ドラッグストア・コンビニ等が並びます。徒歩圏内でおおよその日用品が揃うので、居住はもちろん余暇を過ごすセカンドハウスとしても便利な環境です。
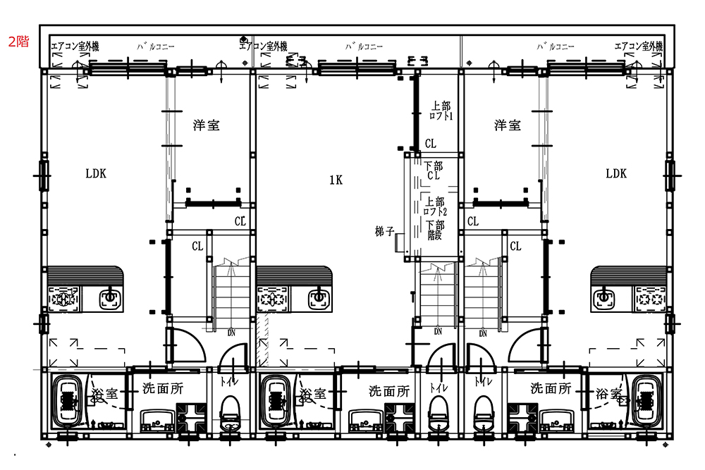
両角部屋となるA/C号室は「1LDK+ガレージ」、中部屋のB号室は「1K+ガレージ」でハシゴで昇降するロフトを装備。ガレージは奥行6.6mで全長5,000㎜級の大型車を入庫しても余白にバイクや自転車を置けるスペースが残ります。
また、ガレージ前は屋外駐車スペースとして使用できるので通勤車を置いたり別荘利用するにも便利。前面道路は一定の交通量がありますが、頭から進入して敷地内で切り替えせるので入出庫のストレスもないでしょう。
比較的手を出しやすい賃料設定も魅力で、初めての一人暮らし・これから同棲をはじめるカップル・二拠点生活をしてみたいという方にもおすすめな物件です。



ガスも使える実用ガレージ

ガレージ寸法は横幅3.00m〜3.38m/奥行6.60m、シャッター開口は横幅2.69m✕高さ2.15m。大型車をゆったり格納できるサイズ感で、スポーツカーなど全長が短い車種なら後方にオートバイ1-2台を置くこともできます。
設備はEV充電用200V電源✕1箇所・100V2口コンセント✕2箇所・TVアンテナ・お湯も出る流し台・ガスコンセント。エアコン用の100V電源を備えるので入居者様にてエアコン設置すれば夏場も快適、冬場にはガスファンヒーターが使えるのもポイントです。
セッティングを煮詰めたり、コツコツと整備したり、時には車仲間と他愛もない話で盛り上がってみたり… そんな等身大のガレージライフを満喫できる空間に仕上がっています。なお、各戸シャッター前には白線で区切られた屋外駐車スペースが付帯するのでガレージと合わせて2台体制が可能です。










複数収納を備えた居室

A/C号室は「LDK(10.73帖)+洋室(3.2帖)」で2つのクローゼットを用意、B号室は「1K(14.15帖)」でハシゴで昇降するロフトと下部に2つのクローゼットがあります。
対面キッチンは入居者様側でコンロを設置するタイプ。水回りは洗面室&浴室は居室から、トイレは階段ホールから出入りするレイアウトです。







アクセス&立地
鉄道駅は小田急小田原線_開成駅まで2.1km。
前面道路は怒田開成小田原線(県道720号)、国道246号まで2.7km。高速道路は東名高速道路_大井松田ICまで3.9kmです。
部屋 | 間取り(面積) | 賃料 |
---|---|---|
A号室 | 1LDK+ガレージ(67.44㎡) | 102,000円 |
B号室 | 1K+ガレージ(67.44㎡) | 入居中 |
C号室 | 1LDK+ガレージ(67.44㎡) | 入居中 |
お申込み・内見のご依頼はお問い合わせフォームよりお願いいたします。希望日時や入居希望時期の項目をご入力いただけるとスムーズにご案内できます。
詳細情報
賃料 | 102,000円 |
---|---|
管理費等 | 共益費3,000円/月 |
礼金/敷金 | 礼金1ヶ月/敷金2ヶ月 |
仲介手数料 | 賃料の1.1ヶ月(税込) |
保証会社 | 加入要(初回:総賃料の70%) |
損保 | 加入要 |
その他 | |
備考 |
所在地 | 神奈川県足柄上郡開成町延沢 |
---|---|
間取り | A/C号室:1LDK+ガレージ B号室:1K+ガレージ |
専有面積 | 67.44㎡ |
構造 | 木造2階建て |
築年月 | 2021年10月(築4年) |
総戸数 | 3戸 |
備考 |
駐車台数 | 1台 |
---|---|
車庫サイズ | 横幅3.00m〜3.38m/奥行6.60m |
開口 | 横幅2.69m✕高さ2.15m |
天井高 | - |
設備 | EV充電用200V電源/100Vコンセント/TVアンテナ/ガスコンセント/流し台/屋外駐車スペース |
車 | 前面道路:怒田開成小田原線(県道720号) 国道246号 2.7km 東名高速道路_大井松田IC 3.9km |
---|---|
鉄道 | 小田急小田原線_開成駅 2.1km |
バス | - |
物件名 | ラディオンオールージュ(足柄上郡開成町) |
---|---|
物件コード | KR170 |
情報更新日 | 2025/10/21 |
更新予定日 | 2025/11/04 |
入居時期 | |
条件 | |
取引態様 | 媒介 |
その他 |
部屋 | 間取り(面積) | 賃料 |
---|---|---|
A号室 | 1LDK+ガレージ(67.44㎡) | 102,000円 |
B号室 | 1K+ガレージ(67.44㎡) | 入居中 |
C号室 | 1LDK+ガレージ(67.44㎡) | 入居中 |
お申込み・内見のご依頼はお問い合わせフォームよりお願いいたします。希望日時や入居希望時期の項目をご入力いただけるとスムーズにご案内できます。