窓越しにディスプレイする愛機
- 大きなガラス越しに見渡すガレージ
- ビッグバイク2-3台を並列駐車可
- 4社5路線の北千住駅 徒歩9分





















賃料 | 152,000円〜172,000円 |
---|---|
管理費等 | 20,000円/月 |
礼金/敷金 | 礼金0ヶ月/敷金0ヶ月 |
所在地 |
東京都足立区千住中居町
|
部屋 | 間取り(面積) | 賃料 |
---|---|---|
101号室 | 1R+ガレージ(40.86㎡) | - |
102号室 | 1R+ガレージ(40.24㎡) | 172,000円 |
103号室 | 1R+ガレージ(39.26㎡) | 171,000円 |
104号室 | 1R+ガレージ(35.43㎡) | 152,000円 |
105号室 | 1R+ガレージ(35.43㎡) | - |
お申込み・内見のご依頼はお問い合わせフォームよりお願いいたします。希望日時や入居希望時期の項目をご入力いただけるとスムーズにご案内できます。
下町風情と都会的な便利さを合わせ持つ足立区千住中居町の「ルミーク北千住(LUMIEC KITASENJU)」。その外観はごく普通の中層マンションに見えますが、33戸のうち1階の5戸(101〜105号室)はバイクガレージを備えた区画となっています。
JR常磐線や東京メトロなど4社5路線が乗り入れ、約160万人/日の乗降客数を誇る北千住駅から徒歩9分で都心方面への通勤にも便利。駅周辺にはルミネやマルイが入る駅ビルから昔ながらの商店街まで多様な店舗が充実しています。
面積やレイアウトは若干異なるものの各戸「1R+バイクガレージ」で居室からガラス越しにガレージを眺められる仕様。車室はビッグバイク2-3台を並列駐車できる余裕があり、ダウンライト照明が愛機を艷やかに照らします。
また、敷地内には月極駐車場・屋外バイク置場・駐輪場(いずれも別途契約/要空確認)が用意されています。



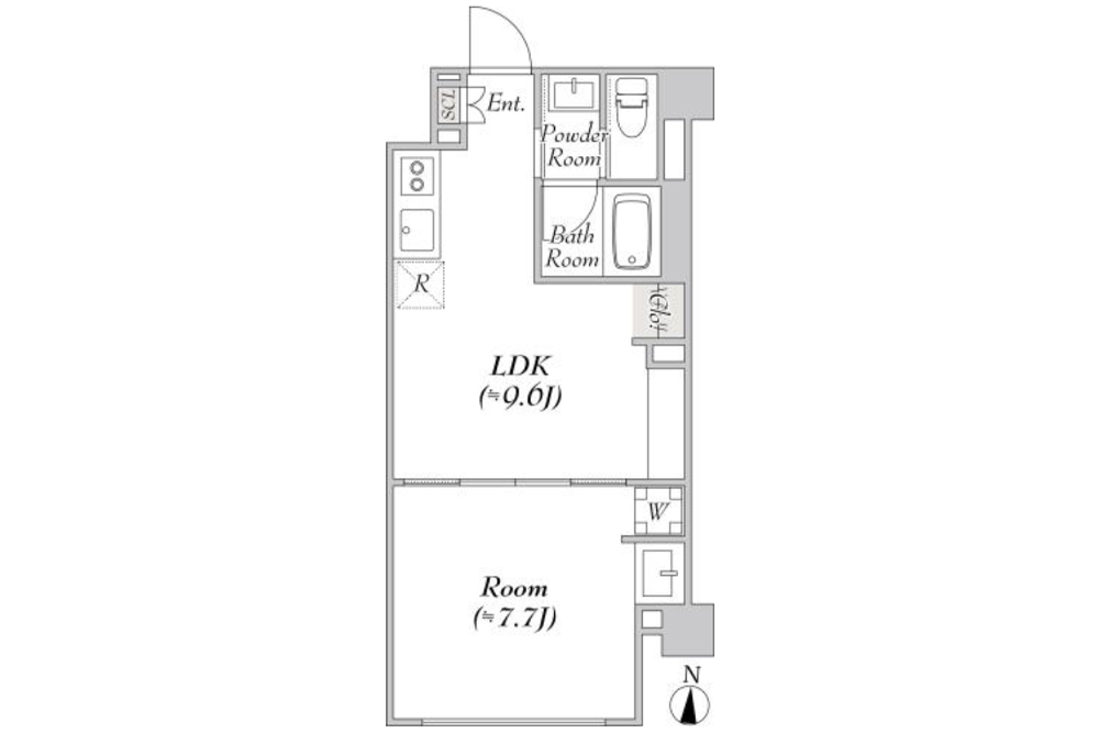
103号室(39.26㎡)

ガレージ

ガレージ内装は暗めのグレーと無彩色コンクリートのツートンでダウンライト照明と相まり、どんなカラーリングのマシンを置いても絵になります。
そして居室からディスプレイのように眺められるのもポイント。ガレージ幅いっぱいのガラス扉は横開式で、扉を閉じればバイクの匂いやシャッターから伝わる熱気・冷気をシャットアウトできます。天井備わる換気扇は換気に一役買ってくれるでしょう。
庫内の100Vコンセントは流し台と洗濯機用を含めて計3箇所。流し台の上はバイク用品やお手入れのアイテムを収納できる棚になっていて、洗濯機置場はガレージ内に設けられています。
ガレージ寸法は横幅3.11m×奥行3.04m、横幅にゆとりがあり壁面に柱の出っ張りがなく使いやすい空間となっています。写真のHarley-Davidson_Sportster IRON883(全長2,185㎜×全幅850㎜)ならば数値上3台格納することができます。
ガレージシャッターは玄関と反対側で開口幅2.52m×高さ1.87m(全戸共通)、電動式ですが停電時にも開閉できるバックアップ電源を備えているのも安心ポイントです。前面道路は幅員3.05mで全長の長いバイクも無理なく出し入れできます。
なお、各室細部のレイアウトやガレージサイズが異なりますが、設備は同様となります。

















居室

103号室の居室は9.9帖、窓はありませんが明るい色のフローリングや柔らかな照明も相まって窮屈な印象はありません。バス・トイレ・パウダールームは単身向けとしてはゆとりあるつくりで、IH2口コンロのキッチンはある程度の調理に対応できそうです。
収納はシューズクローゼットとオープンタイプのクローゼットのみですが、ガレージにラック等を設置するのも良いですね。










101号室(40.86㎡)
101号室のガレージ寸法は横幅3.07m×奥行3.04m。シャッター開口は横幅2.52m×高さ1.87m。居室は10.3帖となります。


102号室(40.24㎡)
102号室のガレージ寸法は横幅3.11m×奥行3.04m。シャッター開口は横幅2.52m×高さ1.87m。居室は10.2帖となります。


104/105号室(35.43㎡)
104/105号室のガレージ寸法は横幅3.10m×奥行3.04m。シャッター開口は横幅2.52m×高さ1.87m。居室は9.6帖となります。



アクセス&立地
鉄道最寄駅は東京メトロ千代田線/日比谷線/JR常磐線/東武スカイツリーライン/つくばエクスプレス_北千住駅で徒歩9分。
幹線道路は日光街道(国道4号)まで250m、墨堤通り(都道461号)まで300m。高速道路は首都高速中央環状線_千住新橋ICまで1.5km、首都高速6号向島線_堤通ICまで3.5kmです。
部屋 | 間取り(面積) | 賃料 |
---|---|---|
101号室 | 1R+ガレージ(40.86㎡) | - |
102号室 | 1R+ガレージ(40.24㎡) | 172,000円 |
103号室 | 1R+ガレージ(39.26㎡) | 171,000円 |
104号室 | 1R+ガレージ(35.43㎡) | 152,000円 |
105号室 | 1R+ガレージ(35.43㎡) | - |
お申込み・内見のご依頼はお問い合わせフォームよりお願いいたします。希望日時や入居希望時期の項目をご入力いただけるとスムーズにご案内できます。
詳細情報
賃料 | 152,000円〜172,000円 |
---|---|
管理費等 | 20,000円/月 |
礼金/敷金 | 礼金0ヶ月/敷金0ヶ月 |
仲介手数料 | 賃料の1.1ヶ月(税込) |
保証会社 | 加入要(初回:総賃料の40〜60%/月額:1,000円〜/年間:10,000円〜) |
損保 | 加入要 18,000円〜 |
その他 | 更新料:新賃料の1ヶ月分 入居サポート:19,800円/2年 退去時ハウスクリーニング、エアコンクリーニング費用 |
備考 | 短期解約違約⾦:12ヶ月未満で賃料1ヶ⽉分 ペット飼育時:敷金1ヶ月積み増し償却 月極駐車場:27,500円/月(要空確認) 月極バイク置場:2,200円/月(要空確認) 駐輪場:1階550円/月、2階220円 |
所在地 | 東京都足立区千住中居町 |
---|---|
間取り | 1R+バイクガレージ |
専有面積 | 35.43㎡〜40.86㎡ |
構造 | RC造5階建て |
築年月 | 2025年9月(築1年未満) |
総戸数 | 33戸(ガレージ付きは5戸) |
備考 | 無料インターネット ペット相談可 |
駐車台数 | バイク2-3台 |
---|---|
車庫サイズ | 本文参照 |
開口 | 開口幅2.52m×高さ1.87m |
天井高 | - |
設備 | 100Vコンセント/流し台 |
バイク | 日光街道(国道4号) 250m/墨堤通り(都道461号) 300m 首都高速中央環状線_千住新橋IC 1.5km/首都高速6号向島線_堤通IC 3.5km |
---|---|
鉄道 | 東京メトロ千代田線/日比谷線/JR常磐線/東武スカイツリーライン/つくばエクスプレス_北千住駅 徒歩9分 |
バス | - |
物件名 | ルミーク北千住 |
---|---|
物件コード | TR255B |
情報更新日 | 2025/10/09 |
更新予定日 | 2025/10/24 |
入居時期 | |
条件 | |
取引態様 | 媒介 |
その他 |
部屋 | 間取り(面積) | 賃料 |
---|---|---|
101号室 | 1R+ガレージ(40.86㎡) | - |
102号室 | 1R+ガレージ(40.24㎡) | 172,000円 |
103号室 | 1R+ガレージ(39.26㎡) | 171,000円 |
104号室 | 1R+ガレージ(35.43㎡) | 152,000円 |
105号室 | 1R+ガレージ(35.43㎡) | - |
お申込み・内見のご依頼はお問い合わせフォームよりお願いいたします。希望日時や入居希望時期の項目をご入力いただけるとスムーズにご案内できます。