均整美が際立つ三角屋根
- 南側2戸/北側2戸の計4戸構成
- 階段ロフトを備えたワンルーム
- JR総武本線_四街道駅 徒歩5分
| 賃料 | 135,000円〜140,000円 |
|---|---|
| 管理費等 | 5,000円/月 |
| 礼金/敷金 | 礼金0ヶ月/敷金1ヶ月 |
| 所在地 |
千葉県四街道市鹿渡
|
| 部屋 | 間取り(面積) | 賃料 |
|---|---|---|
| 1号室 | 1R+ガレージ(41.40㎡) | 140,000円 |
| 2号室 | 1R+ガレージ(41.40㎡) | 135,000円 |
| 3号室 | 1R+ガレージ(41.40㎡) | 入居中 |
| 5号室 | 1R+ガレージ(41.40㎡) | 入居中 |
お申込み・内見のご依頼はお問い合わせフォームよりお願いいたします。希望日時や入居希望時期の項目をご入力いただけるとスムーズにご案内できます。
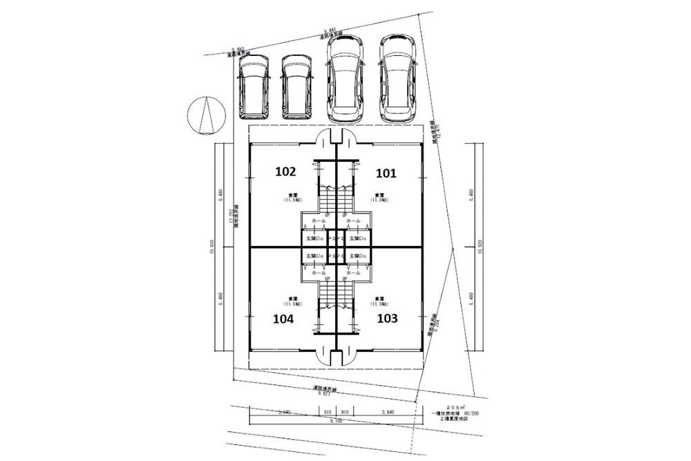
JR総武本線_四街道駅北口から徒歩5分、見通しの良い対向2車線道路沿いに建つ「リヴェール」。
シンメトリックな三角屋根が目を引く建物は、外壁やシャッターはもちろん、サッシや配管まで黒で統一。落ち着きのある端正な佇まいに仕上がっています。
南北2方向を道路に面した敷地で、北側(車道幅員約6.0m)に1/2号室、南側(道路幅員約3.9m)に3/5号室を配置。1/2号室はガレージ前にスペースがあり、車種により2台駐車可能です。
ガレージは奥行5.20mでCクラス(W206 全長4,755㎜×全幅1,820㎜)程度のサイズに対応。居室はワンルームながら、トイレを独立させた水回りと固定階段で昇降するロフトを備えています。
なお、当物件は事務所・店舗利用相談可能なので、事業用途でガレージハウスをお探しの方にもおすすめです。駅からアクセスしやすく、視認性も良いのでビジネス拠点としても活用しやすいでしょう。



玄関と一体化したガレージ

ガレージ寸法は横幅2.57〜3.45m/奥行5.20m、電動シャッターの開口は横幅2.60m×高さ2.10m。奥行が限られるため、入庫は全長4,800㎜程度までが現実的となります。
また、3/5号室は道路幅員約3.9mで、ガレージ入口には傾斜があることから、幅のある車種や低車高車は慎重な検討が必要です。
設備はEV充電用200V電源×1箇所・100V2口コンセント×3箇所で、階段下には扉付き収納を用意。シャッター脇のドアから入り、ガレージを抜けて階段へ続く動線となります。
なお、屋外駐車スペースの寸法は次の通りです。
1号室:横幅4.60m/奥行5.55〜6.45m
2号室:横幅4.90m/奥行4.65〜5.55m













実用的な階段ロフトと吹抜け天井

2FはIH3口コンロの壁付けキッチンを備えたワンルーム(9帖)。固定階段で昇り降りするロフト(4.5帖)は奥行があり、収納力もばっちりです。
全戸2面採光の角部屋で、吹抜け天井にはシーリングファンが吊り下がります。水回りはトイレを独立させた配置で、コンパクトながら快適に暮らせるプランとなっています。








アクセス&立地
鉄道駅はJR総武本線_四街道駅まで徒歩5分。
幹線道路は御成街道(県道66号)まで200m、佐倉街道(国道51号)まで3.2km、国道16号まで4.7km。高速道路は東関東自動車道_四街道ICまで2.7km/千葉北ICまで5.5kmです。
| 部屋 | 間取り(面積) | 賃料 |
|---|---|---|
| 1号室 | 1R+ガレージ(41.40㎡) | 140,000円 |
| 2号室 | 1R+ガレージ(41.40㎡) | 135,000円 |
| 3号室 | 1R+ガレージ(41.40㎡) | 入居中 |
| 5号室 | 1R+ガレージ(41.40㎡) | 入居中 |
お申込み・内見のご依頼はお問い合わせフォームよりお願いいたします。希望日時や入居希望時期の項目をご入力いただけるとスムーズにご案内できます。
詳細情報
| 賃料 | 135,000円〜140,000円 |
|---|---|
| 管理費等 | 5,000円/月 |
| 礼金/敷金 | 礼金0ヶ月/敷金1ヶ月 |
| 仲介手数料 | 賃料の1.1ヶ月(税込) |
| 保証会社 | 加入要(初回:総賃料の50%/年額:10,000円/引落手数料:550円) |
| 損保 | 加入要 18,000円〜/2年 |
| その他 | 更新料:新賃料の1ヶ月分 入居サポート:16,500円/2年 |
| 備考 | 法人契約:礼金1ヶ月/敷金1ヶ月 事務所・店舗利用の場合は賃料等に消費税課税 |
| 所在地 | 千葉県四街道市鹿渡 |
|---|---|
| 間取り | 1R+ガレージ |
| 専有面積 | 41.40㎡ |
| 構造 | 木造2階建 |
| 築年月 | 2026年2月(築1年未満) |
| 総戸数 | 4戸 |
| 備考 | 喫煙不可/短期利用不可/楽器不可 事務所利用・店舗相談可 |
| 駐車台数 | 1台 |
|---|---|
| 車庫サイズ | 横幅2.57〜3.45m/奥行5.20m |
| 開口 | 横幅2.60m×高さ2.10m |
| 天井高 | - |
| 設備 | EV用200V/100Vコンセント/屋外駐車場(1/2号室2台、3号室小型車1台、5号室屋外駐車なし) |
| 車 | 御成街道(県道66号) 200m/佐倉街道(国道51号) 3.2km/国道16号 4.7km 東関東自動車道_四街道IC 2.7km・千葉北IC 5.5km |
|---|---|
| 鉄道 | JR総武本線_四街道駅 徒歩5分 |
| バス | - |
| 物件名 | リヴェール(四街道市) |
|---|---|
| 物件コード | CR183 |
| 情報更新日 | 2026/04/04 |
| 更新予定日 | 2026/04/18 |
| 入居時期 | |
| 条件 | |
| 取引態様 | 媒介 |
| その他 |
| 部屋 | 間取り(面積) | 賃料 |
|---|---|---|
| 1号室 | 1R+ガレージ(41.40㎡) | 140,000円 |
| 2号室 | 1R+ガレージ(41.40㎡) | 135,000円 |
| 3号室 | 1R+ガレージ(41.40㎡) | 入居中 |
| 5号室 | 1R+ガレージ(41.40㎡) | 入居中 |
お申込み・内見のご依頼はお問い合わせフォームよりお願いいたします。希望日時や入居希望時期の項目をご入力いただけるとスムーズにご案内できます。