銅板を纏い、緑に彩られたRC建築
- 全戸200㎡超のゆとりあるプラン
- 羽根木公園に隣接した穏やかな立地
- 世田谷代田駅 歩6分/梅ヶ丘駅 歩9分
| 賃料 | 1,700,000円〜1,850,000円 |
|---|---|
| 管理費等 | なし |
| 礼金/敷金 | 礼金1ヶ月/敷金2ヶ月 |
| 所在地 |
東京都世田谷区代田4丁目
|
| 部屋 | 間取り(面積) | 賃料 |
|---|---|---|
| NAV | 3SLDK+ガレージ(266.67㎡) | 1,850,000円 |
| GRE | 3LDK+ガレージ(244.01㎡) | 1,700,000円 |
| RED | - | 入居中 |
| BLA | 3LDK+ガレージ(244.01㎡) | 1,700,000円 |
お申込み・内見のご依頼はお問い合わせフォームよりお願いいたします。希望日時や入居希望時期の項目をご入力いただけるとスムーズにご案内できます。
小田急線_世田谷代田駅 徒歩6分/梅ヶ丘駅 徒歩9分、世田谷区代田4丁目の穏やかな住宅地。羽根木公園に隣接した開口約90mの敷地に、4戸の戸建て郡となる「THE GRANHAUS HANEGI」と3棟9戸構成の「THE GRANDUO HANEGI」が連なります。
設計はラグジュアリーかつ希少性の高いデザインに特化し、プライベートサーキット「The Magarigawa Club」を手掛けたことでも知られる16アーキテクツ。
堅牢なRC建築でありながら、建物の一部には寺社に使われる日本的なマテリアルである銅板壁を採用。前庭・中庭・屋上や各棟間には植栽が整備されていて、緑が建物全体を包み込むような優しい表情に仕上がっています。
時を経るごとに銅が成熟し、緑が成長していく。街並みそのものが美しくエージングし、10年、20年後にはいっそう豊かな味わいと風格を纏う── そんな時間の価値まで織り込んだ、壮大なスケールの建築なのです。


THE GRANHAUS HANEGI
敷地西側、羽根木公園に隣う位置に建つ戸建てタイプの「THE GRANHAUS HANEGI」。NAVY/REDは縦列2台のAタイプ、GREEN/BLACKは1台のBタイプとなります。

A-TYPE(縦列2台ガレージ)

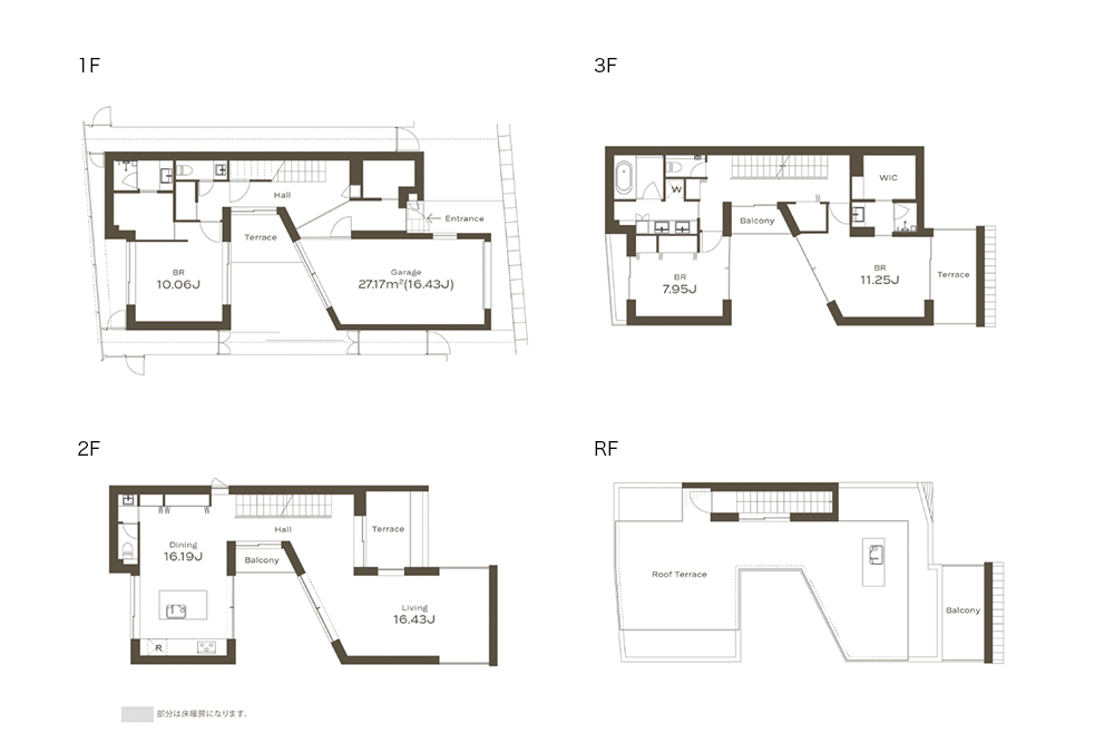
Aタイプ(NAVY/RED)は「3SLDK+縦列2台ガレージ(専有面積266.67㎡)」。
ガレージ寸法は横幅3.46m×奥行11.95m、電動オーバースライダー式のシャッター開口は横幅2.70m×高さ2.12m。奥行は十分なゆとりがあり、全長5,000㎜×2台の想定でも前後と車両間に0.65mずつマージンを確保できます。
庫内にはEV充電用200V電源×1箇所・アース付き100Vコンセント×3箇所・天井埋込型エアコン×2台を装備。ガレージ横には引戸で仕切られたサービスルーム(8.39帖)があり、愛車を観賞したり、自転車や趣味道具を保管するのにぴったりです。
玄関ホールはガラス越しにガレージを見渡せる仕様。2Fはワンフロアを使ったLDK(35.72帖)、3Fには3つのベッドルームと水回りが配置されています。ルーフテラスにはアイランド型の作業台を備え、気候の良い季節にはホームパーティーを開きたくなる設えです。
ガレージ












居室






















B-TYPE(1台ガレージ)

Bタイプ(GREEN/BLACK)は「3LDK+1台ガレージ(専有面積244.01㎡)」。
ガレージは台形型で横幅3.54m/奥行5.90m〜7.60m、シャッター開口は横幅2.75m×高さ2.16m。フェラーリやランボルギーニ等のスーパースポーツもゆったり格納できるサイズ感です。
設備はEV充電用200V電源×1箇所・アース付き100Vコンセント×2箇所・天井埋込型エアコン×1台。ガレージ背面は吐き出し窓になっていて、洋室(10.26帖)からは中庭越しに愛車の様子を見ることができます。
2F/3Fも中庭を挟んで二分したレイアウトで、2Fはダイニングキッチンとリビング、3Fは2つの洋室で構成されています。
ガレージ



居室





アクセス&立地
鉄道駅は小田急線_世田谷代田駅まで徒歩6分、梅ヶ丘駅まで徒歩9分。
幹線道路は環七通りまで600m、井ノ頭通り(都道413号)まで1.7km、甲州街道(国道20号)まで2.0km。高速道路は首都高4号新宿線_永福IC(下り入口)まで2.5km、幡ヶ谷IC(上り入口)まで3.8km、3号渋谷線_三軒茶屋IC(上り入口)まで3.3km、東名高速道路_用賀ICまで6.1kmです。
| 部屋 | 間取り(面積) | 賃料 |
|---|---|---|
| NAV | 3SLDK+ガレージ(266.67㎡) | 1,850,000円 |
| GRE | 3LDK+ガレージ(244.01㎡) | 1,700,000円 |
| RED | - | 入居中 |
| BLA | 3LDK+ガレージ(244.01㎡) | 1,700,000円 |
お申込み・内見のご依頼はお問い合わせフォームよりお願いいたします。希望日時や入居希望時期の項目をご入力いただけるとスムーズにご案内できます。
詳細情報
| 賃料 | 1,700,000円〜1,850,000円 |
|---|---|
| 管理費等 | なし |
| 礼金/敷金 | 礼金1ヶ月/敷金2ヶ月 |
| 仲介手数料 | 賃料の1.1ヶ月(税込) |
| 保証会社 | 加入要(初回:総賃料の50%/年額:12,000円) |
| 損保 | 加入要 25,000円/2年 |
| その他 | 契約事務手数料:22,000円 退去時クリーニング費用:1,286,230円(金額は要見積) |
| 備考 | 解約予告:2ヶ月前 ペット飼育時:敷金1ヶ月積み増し(2匹でも敷金1ヶ月) |
| 所在地 | 東京都世田谷区代田4丁目 |
|---|---|
| 間取り | NAVY/RED:3SLDK+ガレージ GREEN/BLACK:3LDK+ガレージ |
| 専有面積 | NAVY/RED:266.67㎡ GREEN/BLACK:244.01㎡ |
| 構造 | THE GRANHAUS HANEGI:RC造地上3階建て THE GRANDUO HANEGI:RC造地下1階 / 地上3階建 |
| 築年月 | 2025年5月(築1年未満) |
| 総戸数 | THE GRANHAUS HANEGI:4戸 THE GRANDUO HANEGI:9戸 |
| 備考 | 【築年月】 THE GRANDUO HANEGI:2026/3完成予定 |
| 駐車台数 | NAVY/RED:縦列2台 GREEN/BLACK:1台 |
|---|---|
| 車庫サイズ | NAVY/RED:横幅3.46m×奥行11.95m GREEN/BLACK:横幅3.54m/奥行5.90m〜7.60m |
| 開口 | NAVY/RED:横幅2.70m×高さ2.12m GREEN/BLACK:横幅2.75m×高さ2.16m |
| 天井高 | - |
| 設備 | EV用200V/100Vコンセント/エアコン |
| 車 | 環七通り 600m/井ノ頭通り(都道413号) 1.7km/甲州街道(国道20号) 2.0km 首都高4号新宿線_永福IC(下り入口) 2.5km・幡ヶ谷IC(上り入口) 3.8km/3号渋谷線_三軒茶屋IC(上り入口) 3.3km/東名高速道路_用賀IC 6.1km |
|---|---|
| 鉄道 | 小田急線_世田谷代田駅 徒歩6分/梅ヶ丘駅 徒歩9分 |
| バス | - |
| 物件名 | THE GRANHAUS/THE GRANDUO HANEGI(世田谷区) |
|---|---|
| 物件コード | TR275 |
| 情報更新日 | 2026/02/08 |
| 更新予定日 | 2026/04/08 |
| 入居時期 | |
| 条件 | |
| 取引態様 | 媒介 |
| その他 |
| 部屋 | 間取り(面積) | 賃料 |
|---|---|---|
| NAV | 3SLDK+ガレージ(266.67㎡) | 1,850,000円 |
| GRE | 3LDK+ガレージ(244.01㎡) | 1,700,000円 |
| RED | - | 入居中 |
| BLA | 3LDK+ガレージ(244.01㎡) | 1,700,000円 |
お申込み・内見のご依頼はお問い合わせフォームよりお願いいたします。希望日時や入居希望時期の項目をご入力いただけるとスムーズにご案内できます。