4路線徒歩圏の便利な立地
- 109.08㎡の3階メゾネット(A/B号室)
- 地下鉄東山線_八田駅 徒歩3分
- 烏森IC 2.0km/黄金IC 2.8km
| 賃料 | 195,000円〜230,000円 |
|---|---|
| 管理費等 | A/B号室:なし F号室:共益費5,000円/セキュリティ4,000円 |
| 礼金/敷金 | 礼金1ヶ月/保証金1ヶ月 |
| 所在地 |
愛知県名古屋市中川区八田町
|
| 部屋 | 間取り(面積) | 賃料 |
|---|---|---|
| A号室 | 3LDK+ガレージ(109.08㎡) | 230,000円 |
| B号室 | 2SLDK+ガレージ(109.08㎡) | 230,000円 |
| F号室 | 2LDK+ガレージ(111.38㎡) | 195,000円 |
お申込み・内見のご依頼はお問い合わせフォームよりお願いいたします。希望日時や入居希望時期の項目をご入力いただけるとスムーズにご案内できます。
名古屋市営地下鉄東山線_八田駅(徒歩3分)/近鉄八田駅(徒歩5分)/JR関西本線_八田駅(徒歩6分)/名古屋臨海高速鉄道あおなみ線_小本駅(徒歩10分)の4路線駅が徒歩圏となる「リエンテ」。Ⅰ/Ⅱの2棟7戸が並ぶ物件で、A/B号室は四輪向けガレージを備えた3階建てメゾネットとなります。
前面道路は幅員約6mで入出庫はストレスなし、名古屋高速5号万場線_烏森IC(下り入口) 2.0km/黄金IC(上り入口) 2.8kmと高速アクセスも良いので毎日車移動という方にもぴったりです。
建物はモルタル造形による石積み調仕上げで統一されていて、ヨーロッパの街並みのような趣ある一角に。C〜G区画もバイク駐車やアトリエ、オフィス、サロン等として使用できる電動シャッター付きスペースが付帯していて活気ある物件となっています。
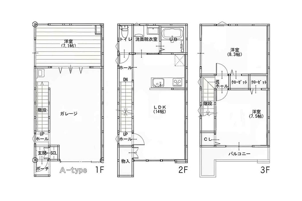
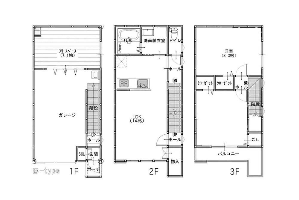
間取りはA号室「3LDK+ガレージ」、B号室「2SLDK+ガレージ」で専有面積109.08㎡。
ガレージ後方にはフォールディングドアで仕切った7.1帖の洋室(B号室はフリースペース)が配置されていて、心ゆくまで愛車を眺めたり、仕事に励んだりと色々なシーンで活躍するでしょう。ドアを解放すれば遮るもは何もなく、ガレージと居室がシームレスに繋がるのも見どころの一つです。
2Fは対面キッチンのあるLDK(14帖)と水回り、3Fは2つの洋室(8.3帖/7.5帖)。カップルならゆったり、ファミリーでも無理なく暮らせる間取りとなっています。なお、当物件は大型犬・猫を含むペット相談可物件なので、わんちゃん・猫ちゃんを含めた家族で入居できるガレージハウスをお探しの方にもおすすめです。
















F号室(111.38㎡)
F号室は「2LDK+ガレージ」の3階建て間取りです。
ガレージは奥行が限られるため、全長4,500㎜未満の車種なら入庫可能です。また、建物前面には別途契約(要空確認)で利用できる縦列2台の屋外駐車スペース(横幅約2.5m×奥行約10.0m)が整備されています。
ガレージ



居室








アクセス&立地
鉄道駅は名古屋市営地下鉄東山線_八田駅まで徒歩3分、近鉄八田駅まで徒歩5分、JR関西本線_八田駅まで徒歩6分、名古屋臨海高速鉄道あおなみ線_小本駅まで徒歩10分。
幹線道路は八熊通(県道29号)まで800m、国道1号まで2.6km。高速道路は名古屋高速5号万場線_烏森IC(下り入口)まで2.0km/黄金IC(上り入口)まで2.8kmです。
| 部屋 | 間取り(面積) | 賃料 |
|---|---|---|
| A号室 | 3LDK+ガレージ(109.08㎡) | 230,000円 |
| B号室 | 2SLDK+ガレージ(109.08㎡) | 230,000円 |
| F号室 | 2LDK+ガレージ(111.38㎡) | 195,000円 |
お申込み・内見のご依頼はお問い合わせフォームよりお願いいたします。希望日時や入居希望時期の項目をご入力いただけるとスムーズにご案内できます。
詳細情報
| 賃料 | 195,000円〜230,000円 |
|---|---|
| 管理費等 | A/B号室:なし F号室:共益費5,000円/セキュリティ4,000円 |
| 礼金/敷金 | 礼金1ヶ月/保証金1ヶ月 |
| 仲介手数料 | 賃料の1.1ヶ月(税込) |
| 保証会社 | 加入要(初回:総賃料の70%) |
| 損保 | 加入要 |
| その他 | |
| 備考 | ペット飼育時:敷金・保証金+1ヶ月 【事業使用時】 解約予告3ヶ月前 事業用に使用する面積で按分して消費税加算 F号室前屋外駐車場:22,000円/月 (2026年7月にEV充電器設置予定) |
| 所在地 | 愛知県名古屋市中川区八田町 |
|---|---|
| 間取り | A号室:3LDK+ガレージ B号室:2SLDK+ガレージ |
| 専有面積 | A/B号室:109.08㎡ |
| 構造 | 木造3階建て |
| 築年月 | 2022年10月(築3年) |
| 総戸数 | 7戸(四輪ガレージ付きは2戸) |
| 備考 | ペット相談可 事業使用相談可 【F号室】 築年月:2025年3月築 |
| 駐車台数 | 1台 |
|---|---|
| 車庫サイズ | 横幅約3.4m/奥行約5.9m |
| 開口 | - |
| 天井高 | - |
| 設備 |
| 車 | 八熊通(県道29号) 800m/国道1号 2.6km 名古屋高速5号万場線_烏森IC(下り入口) 2.0km・黄金IC(上り入口) 2.8km |
|---|---|
| 鉄道 | 名古屋市営地下鉄東山線_八田駅 徒歩3分 近鉄八田駅 徒歩5分 JR関西本線_八田駅 徒歩6分 名古屋臨海高速鉄道あおなみ線_小本駅 徒歩10分 |
| バス | - |
| 物件名 | リエンテ(名古屋市中川区) |
|---|---|
| 物件コード | OR101 |
| 情報更新日 | 2025/10/31 |
| 更新予定日 | 2026/04/08 |
| 入居時期 | |
| 条件 | |
| 取引態様 | 媒介 |
| その他 |
| 部屋 | 間取り(面積) | 賃料 |
|---|---|---|
| A号室 | 3LDK+ガレージ(109.08㎡) | 230,000円 |
| B号室 | 2SLDK+ガレージ(109.08㎡) | 230,000円 |
| F号室 | 2LDK+ガレージ(111.38㎡) | 195,000円 |
お申込み・内見のご依頼はお問い合わせフォームよりお願いいたします。希望日時や入居希望時期の項目をご入力いただけるとスムーズにご案内できます。