ショップにもぴったりな車検場通り
- 2LDK+ガレージ(専有面積116.33㎡)
- 横幅4.9mガレージ+屋根付きスペース
- 足立車検場入口まで100m
| 賃料 | 330,000円 |
|---|---|
| 管理費等 | なし |
| 礼金/敷金 | 礼金2ヶ月/敷金1ヶ月 |
| 所在地 |
東京都足立区南花畑4丁目
|
| 部屋 | 間取り(面積) | 賃料 |
|---|---|---|
| - | 2LDK+ガレージ(116.33㎡) | 330,000円 |
お申込み・内見のご依頼はお問い合わせフォームよりお願いいたします。希望日時や入居希望時期の項目をご入力いただけるとスムーズにご案内できます。
足立車検場入口から約100m、車検場通り沿いに立地する「ティーアイシービルⅡ」。
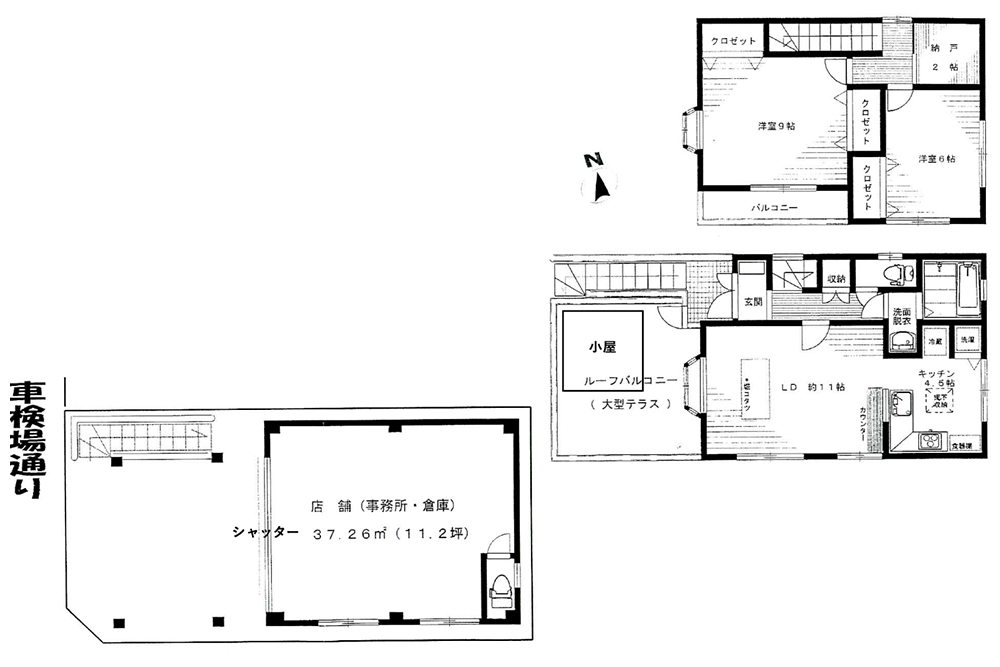
1F重量鉄骨造/2-3F木造となる3階建てで間取りは「2LDK+ガレージ(専有面積116.33㎡)」、事業利用にも柔軟なので“上階に住みながらガレージでショップを営む”という使い方にもぴったりです。車検場至近という地の利も含めて、中古車販売・チューニング・オーディオ・コーティングなどクルマ関連事業との相性が良いでしょう。
ガレージ寸法は横幅5.32m×奥行6.68m(横幅は柱部分で4.97m/奥行は狭い部分で5.77m)、電動シャッターの開口は横幅4.20m×高さ2.33m。大型車ならゆったり1台、「RX-7(FD3S 全長4,285㎜×全幅1,760㎜)+フェアレディZ(S30 全長4,115㎜×全幅1,630㎜)」のように小柄な組み合わせなら2台格納可能です。
設備は100V2口コンセント×2箇所・壁出し水栓・トイレで、ガレージ前には2Fテラスが屋根となる屋外スペース(横幅3.99m×奥行5.00m)があります。なお、前面道路からガレージまでは緩やかに処理されていて、低車高車や重量級バイクの出し入れも問題ありません。
居室は屋外階段を上った2F玄関から出入りします。
2FはL字キッチンのLDK(計15.5帖)と水回り、3Fは2つの洋室(9帖/6帖)。LDKは3面、洋室は2面採光で日当たりも良好、収納は納戸(2帖)を含む大小5箇所が用意されています。




ガレージ




















居室












アクセス&立地
鉄道駅はつくばエクスプレス線_六町駅まで徒歩21分。
幹線道路は日光街道(国道4号)まで1.5km、環七通りまで2.0km。高速道路は首都高6号三郷線_八潮南IC(下り入口)まで2.3km、加平ICまで2.6kmです。

| 部屋 | 間取り(面積) | 賃料 |
|---|---|---|
| - | 2LDK+ガレージ(116.33㎡) | 330,000円 |
お申込み・内見のご依頼はお問い合わせフォームよりお願いいたします。希望日時や入居希望時期の項目をご入力いただけるとスムーズにご案内できます。
詳細情報
| 賃料 | 330,000円 |
|---|---|
| 管理費等 | なし |
| 礼金/敷金 | 礼金2ヶ月/敷金1ヶ月 |
| 仲介手数料 | 賃料の1.1ヶ月(税込) |
| 保証会社 | 加入要 |
| 損保 | 加入要 |
| その他 | 事業利用/ペット飼育時:敷金積み増し有 事業利用時:別途消費税 |
| 備考 |
| 所在地 | 東京都足立区南花畑4丁目 |
|---|---|
| 間取り | 2LDK+ガレージ |
| 専有面積 | 116.33㎡ |
| 構造 | 木・鉄骨造3階建て |
| 築年月 | 1999年3月(築26年) |
| 総戸数 | 1戸 |
| 備考 | ペット相談可 事業利用相談可 1Fと2-3Fで電気・水道メーター別(それぞれ基本料金が発生します) バルコニー小屋、LDK以外のエアコンは残置物 |
| 駐車台数 | 車種により2台 |
|---|---|
| 車庫サイズ | 横幅5.32m×奥行6.68m(横幅は柱部分で4.97m/奥行は狭い部分で5.77m) |
| 開口 | 横幅4.20m×高さ2.33m |
| 天井高 | - |
| 設備 | 100Vコンセント/水栓/ガレージトイレ/屋外駐車スペース |
| 車 | 日光街道(国道4号) 1.5km/環七通り 2.0km 首都高6号三郷線_八潮南IC(下り入口) 2.3km・加平IC 2.6km |
|---|---|
| 鉄道 | つくばエクスプレス線_六町駅 徒歩21分 |
| バス | 足立車検場停留所 徒歩1分 |
| 物件名 | ティーアイシービルⅡ(足立区) |
|---|---|
| 物件コード | TR271 |
| 情報更新日 | 2026/01/14 |
| 更新予定日 | 2026/01/28 |
| 入居時期 | |
| 条件 | |
| 取引態様 | 媒介 |
| その他 |
| 部屋 | 間取り(面積) | 賃料 |
|---|---|---|
| - | 2LDK+ガレージ(116.33㎡) | 330,000円 |
お申込み・内見のご依頼はお問い合わせフォームよりお願いいたします。希望日時や入居希望時期の項目をご入力いただけるとスムーズにご案内できます。