ゲートで閉ざしたプライベート空間
- A/B棟はシャッターゲート内に配置
- サイズや設備で選べる全3タイプ
- 名古屋高速16号_一宮中IC 850m
| 賃料 | 27,500円〜88,000円 |
|---|---|
| 管理費等 | A/B棟:共益費3,000円/月 C棟:なし |
| 礼金/敷金 | 礼金1ヶ月/敷金・保証金3ヶ月 |
| 所在地 |
愛知県一宮市赤見3丁目
|
| No | タイプ | 寸法 | 賃料 |
|---|---|---|---|
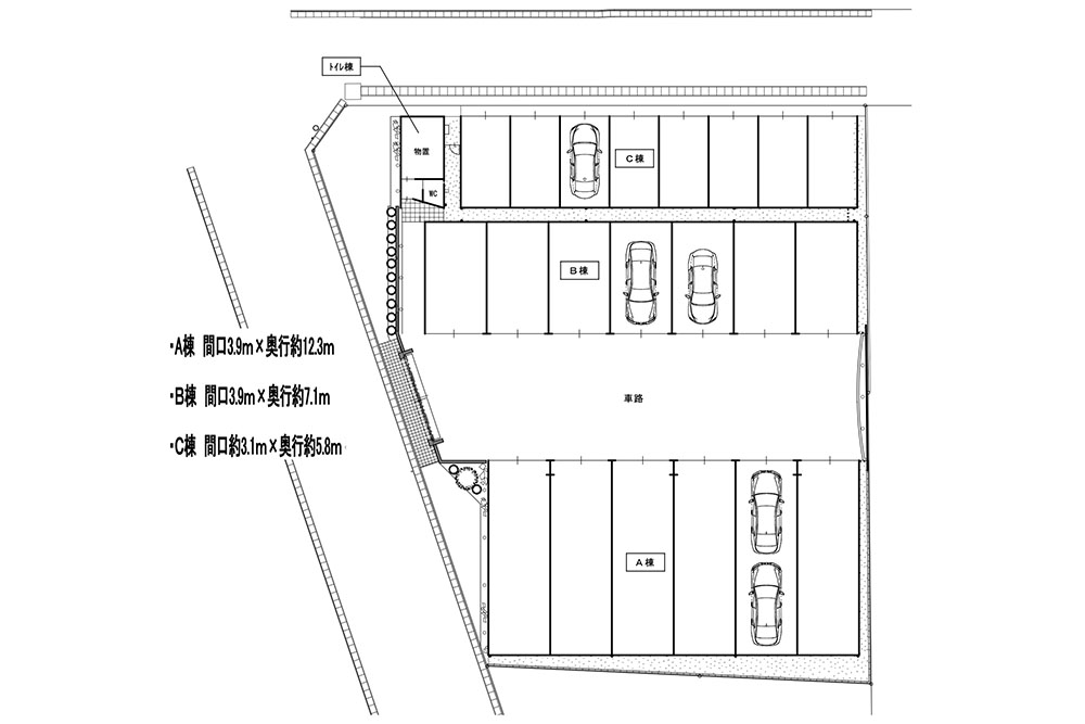
| A棟 | 開口幅約3.9m 奥行約12.3m |
88,000円 | |
| B棟 | 開口幅約3.9m 奥行約7.1m |
55,000円 | |
| C棟 | 開口幅約3.1m 奥行約5.8m |
27,500円 |
お申込み・内見のご依頼はお問い合わせフォームよりお願いいたします。希望日時や入居希望時期の項目をご入力いただけるとスムーズにご案内できます。
四方を塀に囲まれたシャッターゲート付きの13庫と、道路に面したオープンな8庫で構成される貸しガレージ「KAKUREGA(カクレガ)」。重厚な塀に囲まれた外観はガレージというよりも邸宅のような雰囲気が漂っています。名古屋駅北西の一宮市に位置し、名古屋高速16号一宮線_一宮中ICまでは850mという便利な立地となります。
物件はA棟/B棟/C棟の3パートに分かれていて、シャッターゲートと塀に囲まれたA/B棟は、全庫をカバーするセキュリティカメラや各庫に個別導入されたSECOMなど防犯面にも抜かりがありません。
また、エアコン用コンセントやアクセントクロスが使われた内装など、その設備もプレミアムカーにふさわしいものが整います。さらに、敷地内には共用トイレを備えており、落ち着いてガレージ時間を楽しめることでしょう。
一方、沿道に面するC棟はガレージへの出入庫が手軽で、SECOMや100Vコンセントなど設備も整います。愛車の保管をメインに考えるなら、コストに優れたC棟も有効な選択肢です。




プレミアムカーにふさわしい華やぎと安心

A棟/B棟
クローズド区画ならではの“プライベート感”と“安心感”が特徴のA棟(6庫)とB棟(7庫)。両棟は、ゲートから続く車路を挟んで向かい合う配置となります。建物のシャッター側には大きく軒が出ており、雨や日差しがガレージに内に入りにくい構造となっています。
デザイン性に拘ったインテリアも魅力で、シックなグレーを基調としたタイプや温かみのある木目調まで全3種類を用意。愛車を照らす照明は光源を調整できるライティングレールとなり、壁面をアートで彩るピクチャーレールを備えます。
設備はEV充電用200V電源&100Vコンセントに加えて、エアコン用コンセントも設置済み。建物には断熱材が入っているので、エアコンを導入すれば季節を問わず快適に過ごすことができますね。エアコンを常時可動させれば温度・湿度を一定に保てるのでクラシックカーのコンディション維持にもひと役買うでしょう。
A棟とB棟の開口幅は同一で約3.9m。全幅2m近い大型SUVでも出し入れや乗り降りには余裕が感じられることでしょう。
また、B棟は奥行約7.1mで、車1台の駐車を想定しているのに対し、A棟は奥行約12.3mで縦列で2台駐車が可能となっています。
















C棟

北側道路に面するC棟は全8庫。シャッター間口は横幅約3.1m×奥行約5.8mで、電動シャッター・SECOMセキュリティ・換気扇・EV充電用200V電源・100Vコンセントと充分な設備を備えます。


アクセス&立地
鉄道最寄駅は東海道本線_尾張一宮駅、名古屋本線・尾西線_名鉄一宮駅で徒歩37分。
幹線道路は小折一宮線(県道171号線)まで90m、名岐バイパス(国道22号)まで110m、一宮小牧線(県道198号)まで700m。高速道路は名古屋高速16号一宮線_一宮中ICまで850m、東海北陸自動車道_一宮西ICまで5.4kmです。
| No | タイプ | 寸法 | 賃料 |
|---|---|---|---|
| A棟 | 開口幅約3.9m 奥行約12.3m |
88,000円 | |
| B棟 | 開口幅約3.9m 奥行約7.1m |
55,000円 | |
| C棟 | 開口幅約3.1m 奥行約5.8m |
27,500円 |
お申込み・内見のご依頼はお問い合わせフォームよりお願いいたします。希望日時や入居希望時期の項目をご入力いただけるとスムーズにご案内できます。
詳細情報
| 賃料 | 27,500円〜88,000円 |
|---|---|
| 管理費等 | A/B棟:共益費3,000円/月 C棟:なし |
| 礼金/敷金 | 礼金1ヶ月/敷金・保証金3ヶ月 |
| 仲介手数料 | 賃料の1.1ヶ月(税込) |
| 保証会社 | |
| 損保 | |
| その他 | |
| 備考 | 解約時3ヶ月 1年以内解約は保証金全額償却 200V電源を使用する場合は個別契約 |
| 所在地 | 愛知県一宮市赤見3丁目 |
|---|---|
| 総庫数 | 21庫 |
| 備考 | バイク(二輪車)の駐車禁止 ガレージ内、敷地内での整備禁止 |
| 駐車台数 | A棟:縦列2台 B/C棟:1台 |
|---|---|
| 車庫サイズ | A棟:奥行12.3m(47.97㎡) B棟:奥行7.1m(27.69㎡) C棟:奥行5.8m(17.98㎡) |
| 開口 | A/B棟:開口幅約3.9m C棟:開口幅約3.1m |
| 天井高 | - |
| 設備 | EV用200V/100V/SECOM/屋外散水栓/共用トイレ(A/B棟のみ) |
| 車 | 小折一宮線(県道171号線)90m/名岐バイパス(国道22号) 110m/一宮小牧線(県道198号) 700m 名古屋高速16号一宮線_一宮中IC 850m/東海北陸自動車道_一宮西IC 5.4km |
|---|---|
| 鉄道 | 東海道本線_尾張一宮駅 徒歩37分 名古屋本線・尾西線_名鉄一宮駅 徒歩37分 |
| バス | - |
| 物件名 | KAKUREGA(一宮市) |
|---|---|
| 物件コード | OR100 |
| 情報更新日 | 2025/10/30 |
| 更新予定日 | 2026/04/08 |
| 入居時期 | |
| 条件 | |
| 取引態様 | 媒介 |
| その他 |
| No | タイプ | 寸法 | 賃料 |
|---|---|---|---|
| A棟 | 開口幅約3.9m 奥行約12.3m |
88,000円 | |
| B棟 | 開口幅約3.9m 奥行約7.1m |
55,000円 | |
| C棟 | 開口幅約3.1m 奥行約5.8m |
27,500円 |
お申込み・内見のご依頼はお問い合わせフォームよりお願いいたします。希望日時や入居希望時期の項目をご入力いただけるとスムーズにご案内できます。