スーパーカーも安心なゆったり動線
- 四輪ガレージ12庫/二輪ガレージ2庫
- シャッター開口幅3.3m&車路幅6.9m
- 国道4号 600m/加平IC 3.9km
| 賃料 | 75,900円 |
|---|---|
| 管理費等 | なし |
| 礼金/敷金 | 礼金1ヶ月/敷金0ヶ月 |
| 所在地 |
東京都足立区保木間4丁目
|
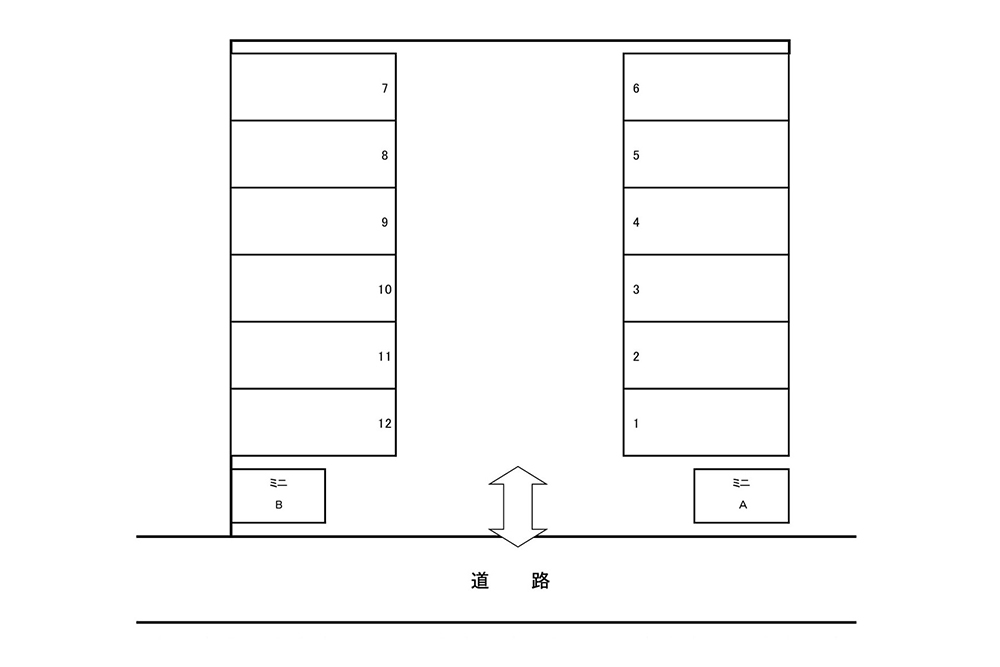
| No | タイプ | 寸法 | 賃料 |
|---|---|---|---|
| 1 | 開口幅3.33m 奥行6.06m |
満車 | |
| 2 | 開口幅3.33m 奥行6.06m |
75,900円 | |
| 3 | 開口幅3.33m 奥行6.06m |
75,900円 | |
| 4 | 開口幅3.33m 奥行6.06m |
75,900円 | |
| 5 | 開口幅3.33m 奥行6.06m |
75,900円 | |
| 6 | 開口幅3.33m 奥行6.06m |
75,900円 | |
| 7 | 開口幅3.33m 奥行6.06m |
満車 | |
| 8 | 開口幅3.33m 奥行6.06m |
満車 | |
| 9 | 開口幅3.33m 奥行6.06m |
75,900円 | |
| 10 | 開口幅3.33m 奥行6.06m |
75,900円 | |
| 11 | 開口幅3.33m 奥行6.06m |
75,900円 | |
| 12 | 開口幅3.33m 奥行6.06m |
75,900円 | |
| A | バイク | 開口幅1.53m 奥行2.44m |
満車 |
| B | バイク | 開口幅1.53m 奥行2.44m |
満車 |
お申込み・内見のご依頼はお問い合わせフォームよりお願いいたします。希望日時や入居希望時期の項目をご入力いただけるとスムーズにご案内できます。
日光街道(国道4号)保木間4丁目交差点から600mの貸しガレージ「保木間BASE」。足立区北部に位置し、草加市・八潮市方面からもアクセスしやすい立地です。
見通しの良い対向2車線沿いで首都高や幹線道路から細い道を通らずにアプローチ可能。敷地入口は十分に切り下げされガレージ間の車路幅は6.95mを確保しているので、取り回しが難しいフェラーリやランボルギーニも安心して入出庫できます。
四輪向けガレージ×12庫、二輪向けガレージ×2庫の計14庫構成で各寸法は次の通りとなります。



四輪向けガレージ

ガレージ寸法は横幅3.50m×奥行6.06m、シャッター開口は横幅3.33m×高さ2.27m。十分なゆとりがあるので、ワイドな車種もガバっとドアを開けて乗り降りすることができます。
庫内には100V2口コンセントと照明を完備し、バッテリー管理や夜間の出し入れをサポート。シャッターは手動式ですが軽い力でスムーズに昇降できます。













二輪向けガレージ

敷地入口側のA/B区画はオートバイに適した小さなガレージです。
寸法は横幅1.57m×奥行2.44m、シャッター開口は横幅1.53m×高さ2.12mで電気の引込はありません。ハーレー等の大型モデルも無理なく収まり、小〜中型なら組み合わせにより2台格納することもできます。
アクセス&立地
鉄道駅は東武伊勢崎線_竹ノ塚駅まで2.2km(バス10分 停歩5分)。
幹線道路は日光街道(国道4号)まで600m、環七通りまで2.7km。高速道路は首都高6号三郷線_八潮南IC(下り入口)まで3.4km、加平ICまで3.9kmです。

| No | タイプ | 寸法 | 賃料 |
|---|---|---|---|
| 1 | 開口幅3.33m 奥行6.06m |
満車 | |
| 2 | 開口幅3.33m 奥行6.06m |
75,900円 | |
| 3 | 開口幅3.33m 奥行6.06m |
75,900円 | |
| 4 | 開口幅3.33m 奥行6.06m |
75,900円 | |
| 5 | 開口幅3.33m 奥行6.06m |
75,900円 | |
| 6 | 開口幅3.33m 奥行6.06m |
75,900円 | |
| 7 | 開口幅3.33m 奥行6.06m |
満車 | |
| 8 | 開口幅3.33m 奥行6.06m |
満車 | |
| 9 | 開口幅3.33m 奥行6.06m |
75,900円 | |
| 10 | 開口幅3.33m 奥行6.06m |
75,900円 | |
| 11 | 開口幅3.33m 奥行6.06m |
75,900円 | |
| 12 | 開口幅3.33m 奥行6.06m |
75,900円 | |
| A | バイク | 開口幅1.53m 奥行2.44m |
満車 |
| B | バイク | 開口幅1.53m 奥行2.44m |
満車 |
お申込み・内見のご依頼はお問い合わせフォームよりお願いいたします。希望日時や入居希望時期の項目をご入力いただけるとスムーズにご案内できます。
詳細情報
| 賃料 | 75,900円 |
|---|---|
| 管理費等 | なし |
| 礼金/敷金 | 礼金1ヶ月/敷金0ヶ月 |
| 仲介手数料 | 賃料の1.1ヶ月(税込) |
| 保証会社 | 加入要(初回:総賃料の100%〜) |
| 損保 | 加入要 |
| その他 | |
| 備考 |
| 所在地 | 東京都足立区保木間4丁目 |
|---|---|
| 総庫数 | 14庫 |
| 備考 |
| 駐車台数 | 1〜12:車1台 A/B:バイク1台 |
|---|---|
| 車庫サイズ | 1〜12:横幅3.50m×奥行6.06m A/B:横幅1.57m×奥行2.44m |
| 開口 | 1〜12:横幅3.33m×高さ2.27m A/B:横幅1.53m×高さ2.12m |
| 天井高 | - |
| 設備 | 1〜12:100V/照明 |
| 車 | 日光街道(国道4号) 600m/環七通り 2.7km 首都高6号三郷線_八潮南IC(下り入口) 3.4km・加平IC 3.9km |
|---|---|
| 鉄道 | 東武伊勢崎線_竹ノ塚駅 2.2km(バス10分 停歩5分) |
| バス | 保木間停留所 徒歩5分 |
| 物件名 | 保木間BASE(足立区) |
|---|---|
| 物件コード | TR266G |
| 情報更新日 | 2025/11/27 |
| 更新予定日 | 2025/12/11 |
| 入居時期 | |
| 条件 | |
| 取引態様 | 媒介 |
| その他 |
| No | タイプ | 寸法 | 賃料 |
|---|---|---|---|
| 1 | 開口幅3.33m 奥行6.06m |
満車 | |
| 2 | 開口幅3.33m 奥行6.06m |
75,900円 | |
| 3 | 開口幅3.33m 奥行6.06m |
75,900円 | |
| 4 | 開口幅3.33m 奥行6.06m |
75,900円 | |
| 5 | 開口幅3.33m 奥行6.06m |
75,900円 | |
| 6 | 開口幅3.33m 奥行6.06m |
75,900円 | |
| 7 | 開口幅3.33m 奥行6.06m |
満車 | |
| 8 | 開口幅3.33m 奥行6.06m |
満車 | |
| 9 | 開口幅3.33m 奥行6.06m |
75,900円 | |
| 10 | 開口幅3.33m 奥行6.06m |
75,900円 | |
| 11 | 開口幅3.33m 奥行6.06m |
75,900円 | |
| 12 | 開口幅3.33m 奥行6.06m |
75,900円 | |
| A | バイク | 開口幅1.53m 奥行2.44m |
満車 |
| B | バイク | 開口幅1.53m 奥行2.44m |
満車 |
お申込み・内見のご依頼はお問い合わせフォームよりお願いいたします。希望日時や入居希望時期の項目をご入力いただけるとスムーズにご案内できます。