大人の放課後、気ままなクルマ遊び
- 1LDK+並列2台ガレージの平屋建て
- 敷地面積177.83㎡/建物面積108.07㎡
- 三郷南IC 1.8km/八潮南IC 3.7km
| 価格 (税込) |
6,600万円 |
|---|---|
| 所在地 |
埼玉県三郷市戸ケ崎2丁目
|
お申込み・内見のご依頼はお問い合わせフォームよりお願いいたします。希望日時や入居希望時期の項目をご入力いただけるとスムーズにご案内できます。
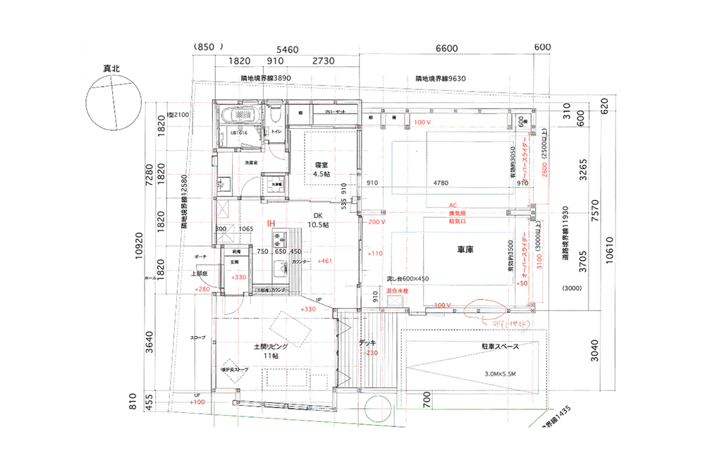
23区内最大規模、96.3haを誇る水元公園の北側に位置する三郷市戸ケ崎2丁目。東側8.5m/南側5.8m道路に面した開けた角地に、1LDK+ガレージ(建物面積108.07㎡)の平屋建てガレージハウスが構えます。
ガレージは2枚の電動オーバースライダーシャッターを装備した並列2台タイプ。居室部はカウンターを兼ねたキッチンを中心に土間リビング(11帖)・DK(10.5帖)・洋室(4.5帖)で構成されています。
単身や夫婦なら居住にも対応できる間取りですが、設計の主眼はあくまでセカンドハウス。クルマ趣味を軸に、気のおけない仲間と集い、語らい、かけがえのない時間を過ごす。そんな“大人の放課後”を愉しむ拠点にふさわしい一棟です。
外環自動車道_三郷南IC 1.8km/首都高6号_八潮南IC 3.7kmと高速2路線を利用できる立地もポイントで、交通量の少ない夜間なら都心からおおよそ30〜40分で到着できる距離感です。
各車室の寸法は次の通り。左右間には一部袖壁がありますが、開口幅4.60mを確保していてドア開閉や行き来に支障はありません。
正面右側:横幅3.08〜3.68m/奥行6.33m、シャッター開口幅2.57m×高さ2.24m
正面左側:横幅3.51m/奥行6.33m、シャッター開口幅3.07m×高さ2.24m
庫内にはEV充電用200V電源×1箇所・100V2口コンセント×3箇所・100V仕様のエアコン×2基・お湯も出る流し台を完備。ガレージ横には電動ゲート付きの屋外駐車スペース(横幅3.65m×奥行5.60m)が整備されています。
屋外駐車スペースの後方にはウッドデッキがあり、フォールディングドアを開放すればリビングとひと続きの空間に。洗車したての愛車を眺めながら寛いだり、ゲストのマシンを停めてティータイムを過ごしたりと、ガレージライフの楽しみ方が広がります。道路側には背の高い植栽が配され、さりげない目隠しとしても機能しています。




ガレージ
















居室














アクセス&立地
鉄道駅はつくばエクスプレス_八潮駅まで徒歩29分。
幹線道路は鎌倉通り(県道54号)まで600m、国道298号まで1.6km。高速道路は外環自動車道_三郷南ICまで1.8km、首都高6号_八潮南ICまで3.7kmです。
お申込み・内見のご依頼はお問い合わせフォームよりお願いいたします。希望日時や入居希望時期の項目をご入力いただけるとスムーズにご案内できます。
詳細情報
| 価格 (税込) |
6,600万円 |
|---|---|
| 仲介手数料 | 売買価格の3.3%+66,000円(税込) |
| 所在地 | 埼玉県三郷市戸ケ崎2丁目 |
| 間取り | 1LDK+ガレージ |
| 土地面積 | 177.83㎡ |
| 建物面積 | 108.07㎡ |
| 建ぺい率・容積率 | 70%・200% |
| 築年月 | 2023年7月(築2年) |
| 土地の権利形態 | 所有権 |
| 構造 | 木造1階建 |
| 施工 | |
| 都市計画 | 市街化区域 |
| 用途地域 | 準工業地域 |
| 備考 |
| 駐車台数 | 並列2台 |
|---|---|
| 車庫サイズ | 右側:横幅3.08〜3.68m/奥行6.33m 左側:横幅3.51m/奥行6.33m |
| 開口 | 右側:横幅2.57m×高さ2.24m 左側:横幅3.07m×高さ2.24m |
| 天井高 | - |
| シャッター | 電動オーバースライダーシャッター |
| 設備 | EV用200V/100V/流し台/エアコン/屋外立水栓/屋外駐車スペース |
| 備考 |
| 車 | 鎌倉通り(県道54号) 600m/国道298号 1.6km 外環自動車道_三郷南IC 1.8km/首都高6号_八潮南IC 3.7km |
|---|---|
| 鉄道 | つくばエクスプレス_八潮駅 徒歩29分 |
| バス | - |
| 物件名 | 三郷市戸ケ崎2丁目の中古ガレージハウス |
|---|---|
| 物件コード | SS20 |
| 情報更新日 | 2026/03/30 |
| 更新予定日 | 2026/04/13 |
| 入居時期 | |
| 条件 | |
| 取引態様 | 媒介 |
| その他 |
お申込み・内見のご依頼はお問い合わせフォームよりお願いいたします。希望日時や入居希望時期の項目をご入力いただけるとスムーズにご案内できます。